大阪府大阪市城東区中浜1丁目(大阪城公園駅)の貸駐車場:物件詳細
交通 所在地 |
駅徒歩 |
賃料 |
敷金/保証金 |
礼金 |
JR大阪環状線/大阪城公園
大阪府大阪市城東区中浜1丁目
|
17分
|
0.7万円
|
なし / 0.7万円
|
なし
|
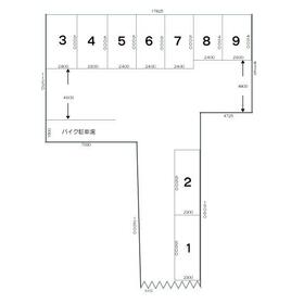
平面図
配置図。バイク区画は独立。
|
外観
ゲート付きで安心。
|
<
その他の画像
>
|
交通 | JR大阪環状線 大阪城公園駅 徒歩17分 |
---|
その他の交通 | 地下鉄今里筋線 緑橋駅 徒歩10分 JR片町線 鴫野駅 徒歩12分 |
所在地 |
大阪府大阪市城東区中浜1丁目
|
物件種目 |
賃貸駐車場 |
賃料 |
0.7万円 |
敷金 / 保証金 |
なし / 0.7万円 |
敷引 |
- |
管理費等 |
なし |
礼金 |
なし |
保証金償却 |
- |
その他一時金 |
- |
保険等 |
- |
維持費等 |
- |
アピールポイント |
鴫野・緑橋駅周辺の駐車場をお探しなら(株)ミックへ。
オーナー様も募集中。空いている駐車場がございましたら、お気軽に、ご相談ください。 |
駐車場名 |
川濱ガレージ(バイク区画) |
特記事項 |
24時間利用可 |
備考 |
管理形態/管理員の勤務形態:-/-
接道状況:東 公道
バイク区画の募集です。
隣がいないので、安心して止めれます。
前面道路は北向きの一方通行です。
大阪公立大学へ通勤・通学の方にいかがでしょうか。
|
エネルギー消費性能 |
- |
断熱性能 |
- |
目安光熱費 |
- |
契約期間 |
1年 |
引渡可能時期 |
即時 |
現況 |
空 |
更新料 |
なし |
物件番号 |
6988000210 |
適格請求書発行 |
不可 |
情報公開日 |
2025年10月13日 |
次回更新予定日 |
2025年10月27日 |
ケータイ用バーコード |
- スマートフォンでこの物件を見る
- スマートフォンからもこの物件をご覧になれます。
|
※「-」と表示されている項目については、情報提供会社にご確認ください。
周辺施設 |
白山神社(城東区) |
距離 |
176m |
写真を見る |
周辺施設 |
大阪市立中浜小学校 |
距離 |
277m |
写真を見る |
周辺施設 |
ジャパン城東店 |
距離 |
424m |
写真を見る |
周辺施設 |
城東中浜郵便局 |
距離 |
460m |
写真を見る |
周辺施設 |
城東消防署中浜出張所 |
距離 |
473m |
写真を見る |
周辺施設 |
医療法人有光会サトウ病院 |
距離 |
568m |
写真を見る |
周辺施設 |
社会医療法人大道会ボバース記念病院 |
距離 |
723m |
写真を見る |
ここから簡単にお問い合わせをすることができます。
(SSLでの暗号化での送信を希望されるお客さまは
こちら
よりお問い合わせください)
お問い合わせを行う前に
「個人情報の取り扱いについて」を必ずお読みください。
「個人情報の取り扱いについて」に同意いただいた場合は「上記にご同意の上 確認画面へ進む」のボタンをクリックしてください。
個人情報の取り扱いについて
皆さまが送付された個人情報はアットホーム(株)のサーバを経由し、お問い合わせ先の不動産会社にメールまたはFAXにて転送されるためアットホーム(株)にも保管されます。アットホーム(株)で保管された個人情報の取り扱いについては、【こちら】をご覧ください。
また、本画面でご記入いただいた個人情報は、お問い合わせ先の不動産会社でも保管します。 お問い合わせ先の不動産会社が保管する個人情報の取り扱いについては、不動産会社に直接お問い合わせください。
大阪府知事免許(9)第33951号 |
---|
- 交通:
- JR片町線/鴫野駅 徒歩3分
- 大阪府大阪市城東区鴫野東3丁目2番27号
- TEL:
- 06-6968-8051
- FAX:
- 06-6968-8053
- 所属団体:
- (一社)大阪府宅地建物取引業協会会員(公社)近畿地区不動産公正取引協議会加盟
取引態様:仲介  - 50110253
|
- スマートフォンで
この不動産会社を見る

|
- 提携サイト等より掲載されている物件情報につきましては、不動産会社詳細情報にリンクされていないものがあります。
- 物件に関するお問合せは、物件詳細ページの「情報提供会社」に表示されている不動産会社へ直接お願いいたします。
- 間取図は、現況を優先させていただきます。
- 映像は物件の一部を撮影したものです。物件の契約にあたっての最終判断はご自身の判断に基づいて行ってください。
- 仲介手数料について

アットホームは物件情報の適正化に努めております。
内容に誤りがある場合にはこちらへご連絡ください。