高知県高知市桜井町1丁目(菜園場町駅)の貸店舗:物件詳細
交通 所在地 |
駅徒歩 |
賃料 管理費等 |
敷金/保証金 礼金 |
使用部分面積 坪数/坪単価 |
物件種目 築年月 |
|
とさでん交通後免線/菜園場町 [バス利用可] バス 菜園場町バス停 停歩3分
高知県高知市桜井町1丁目
|
3分
|
16.5万円
-
|
45万円 / なし
16.5万円
|
69.27m²
20.95坪/0.7875万円
|
貸店舗・事務所
2002年5月(築24年)
|
|
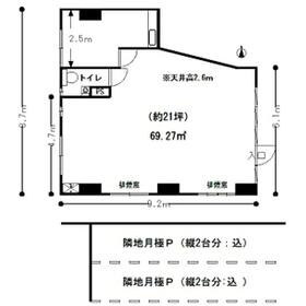
間取図
☆★商店街内注目度良好・P縦列小型2台分×2列込+近隣P一括3万あり
|
|
その他の画像
|
| 交通 | とさでん交通後免線 菜園場町駅 徒歩3分 [バス利用可] バス 菜園場町バス停 停歩3分 |
| 所在地 |
高知県高知市桜井町1丁目
|
| 物件種目 |
貸店舗・事務所 |
| 賃料 |
16.5万円 |
管理費等 |
- |
| 敷金 / 保証金 |
45万円 / なし |
礼金 |
16.5万円 |
| 敷引 |
- |
坪単価 |
0.7875万円 |
| 保証金償却 |
- |
権利金 |
- |
| 造作譲渡 |
- |
その他一時金 |
- |
| 維持費等 |
P近隣一括:30,000円/月 |
保険等 |
要 2年 25,500円 借家人賠償 |
| 使用部分面積 |
69.27m² |
坪数 |
20.95坪 |
| 築年月 |
2002年5月(築24年)
|
階建 / 階 |
7階建 / 1階 |
| 駐車場 |
有 無料(空き4台) 縦列小型2台×2列込・近隣一括3万円有 |
バイク置き場 |
- |
| 駐輪場 |
有 無料 |
土地面積 |
- |
| 接道状況 |
東 公道
|
用途地域 |
商業地域 |
| 間取り |
- |
建物構造 |
RC |
| アピールポイント |
☆★P縦列小型2台×2列込+近隣P一括3万円有可★帯屋町+追手筋歩7分+采園場電停歩3分★商店街内★2020年(トイレ+流し台新規+照明等。※愛夢 高知:検索で他物件もご覧下さい |
| 建物名・部屋番号 |
|
| リフォーム履歴 |
- |
| リノベーション履歴 |
- |
| 特記事項 |
土曜日利用可、土日・祝日利用可、飲食店不可、1フロア1テナント、駐車場2台分、駐車場3台分以上、角部屋、天井高2.5M以上 |
| 備考 |
賃貸保証等:加入要(初回100%円・10%(1万~)円/年)
管理形態/管理員の勤務形態:-/-
主要採光面:東向き
|
| エネルギー消費性能 |
- |
| 断熱性能 |
- |
| 目安光熱費 |
- |
| バス・トイレ |
専有部分にトイレあり |
| キッチン |
オープンキッチン |
| 設備・サービス |
看板取付スペースあり、天井高2.6m、建物間口6.1m、換気口あり、排煙設備あり
給湯、プロパンガス、インターネット対応、光ファイバー |
| その他 |
- |
| 契約期間 |
2年 |
条件等 |
- |
| 引渡可能時期 |
即時 |
現況 |
空 |
| 更新料 |
- |
物件番号 |
6970843672 |
| 情報公開日 |
2026年3月2日 |
次回更新予定日 |
2026年4月13日 |
| ケータイ用バーコード |
- スマートフォンでこの物件を見る
- スマートフォンからもこの物件をご覧になれます。
|
※「-」と表示されている項目については、情報提供会社にご確認ください。
| 周辺施設 |
セブンイレブン高知菜園場町店 |
| 距離 |
138m |
| 周辺施設 |
高知県立大学永国寺キャンパス |
| 距離 |
1711m |
| 周辺施設 |
幼保連携型認定こども園桜井幼稚園 |
| 距離 |
263m |
| 周辺施設 |
医療法人さくらの里だいいちリハビリテーション病院 |
| 距離 |
304m |
| 周辺施設 |
コナミスポーツクラブはりまや橋 |
| 距離 |
421m |
ここから簡単にお問い合わせをすることができます。
(SSLでの暗号化での送信を希望されるお客さまは
こちら
よりお問い合わせください)
お問い合わせを行う前に
「個人情報の取り扱いについて」を必ずお読みください。
「個人情報の取り扱いについて」に同意いただいた場合は「上記にご同意の上 確認画面へ進む」のボタンをクリックしてください。
個人情報の取り扱いについて
皆さまが送付された個人情報はアットホーム(株)のサーバを経由し、お問い合わせ先の不動産会社にメールまたはFAXにて転送されるためアットホーム(株)にも保管されます。アットホーム(株)で保管された個人情報の取り扱いについては、【こちら】をご覧ください。
また、本画面でご記入いただいた個人情報は、お問い合わせ先の不動産会社でも保管します。 お問い合わせ先の不動産会社が保管する個人情報の取り扱いについては、不動産会社に直接お問い合わせください。
高知県知事免許(4)第2635号 |
|---|
- 交通:
- とさでん交通桟橋線/梅の辻駅 徒歩3分
- 高知県高知市梅ノ辻18-13
- TEL:
- 088-831-5551
- FAX:
- 088-831-5574
- 所属団体:
- (公社)高知県宅地建物取引業協会会員四国地区不動産公正取引協議会加盟
取引態様:仲介  - 50018582
|
- スマートフォンで
この不動産会社を見る

|
- 提携サイト等より掲載されている物件情報につきましては、不動産会社詳細情報にリンクされていないものがあります。
- 物件に関するお問合せは、物件詳細ページの「情報提供会社」に表示されている不動産会社へ直接お願いいたします。
- 間取図は、現況を優先させていただきます。
- 映像は物件の一部を撮影したものです。物件の契約にあたっての最終判断はご自身の判断に基づいて行ってください。
- 仲介手数料について

アットホームは物件情報の適正化に努めております。
内容に誤りがある場合にはこちらへご連絡ください。