鹿児島県鹿児島市石谷町(上伊集院駅)の貸店舗:物件詳細
交通 所在地 |
駅徒歩 |
賃料 管理費等 |
敷金/保証金 礼金 |
使用部分面積 坪数/坪単価 |
物件種目 築年月 |
|
JR鹿児島本線/上伊集院 [バス利用可] バス チェスト館前 停歩5分
鹿児島県鹿児島市石谷町
|
22分
|
25.3万円
5,000円
|
4ヶ月 / なし
なし
|
91.69m²
27.73坪/0.9122万円
|
貸店舗・事務所
2022年3月(築3年10ヶ月)
|
|
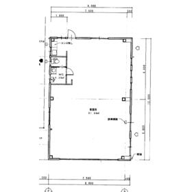
間取図
|
外観
1階部分です。
|
その他の画像
|
| 交通 | JR鹿児島本線 上伊集院駅 徒歩22分 [バス利用可] バス チェスト館前 停歩5分 |
| 所在地 |
鹿児島県鹿児島市石谷町
|
| 物件種目 |
貸店舗・事務所 |
| 賃料 |
25.3万円 |
管理費等 |
5,000円 |
| 敷金 / 保証金 |
4ヶ月 / なし |
礼金 |
なし |
| 敷引 |
- |
坪単価 |
0.9122万円 |
| 保証金償却 |
- |
権利金 |
- |
| 造作譲渡 |
- |
その他一時金 |
- |
| 維持費等 |
- |
保険等 |
要 借家人賠償および施設賠償 |
| 使用部分面積 |
91.69m² |
坪数 |
27.73坪 |
| 築年月 |
2022年3月(築3年10ヶ月)
|
階建 / 階 |
1階建 / 1階 |
| 駐車場 |
有 無料 玄関前に12m幅 |
バイク置き場 |
有 無料 |
| 駐輪場 |
有 無料 |
土地面積 |
- |
| 接道状況 |
-
|
用途地域 |
田園住居 |
| 間取り |
ワンルーム |
建物構造 |
鉄骨造 |
| アピールポイント |
事務所、店舗として人気のエリア。薩摩半島の中心に位置していますので、鹿児島市内とのアクセスはもちろん、近くの高速道路ICを利用して県内各地にも移動しやすい立地です。 |
| 建物名・部屋番号 |
石谷町貸事務所Ⅲ |
| リフォーム履歴 |
- |
| リノベーション履歴 |
- |
| 特記事項 |
飲食店不可、IT重説対応物件 |
| 備考 |
賃貸保証等:加入要(㈱ナップ、賃料1月分)
管理形態/管理員の勤務形態:-/-
主要採光面:北向き
IT重説対応物件
【13坪に分割貸も可】チェスト館そば、松元ICからまっすぐのアクセスのよいエリア。
|
| エネルギー消費性能 |
- |
| 断熱性能 |
- |
| 目安光熱費 |
- |
| バス・トイレ |
トイレ |
| キッチン |
- |
| 設備・サービス |
- |
| その他 |
- |
| 契約期間 |
3年 |
条件等 |
- |
| 引渡可能時期 |
指定有り2026年2月16日 |
現況 |
居住中 |
| 更新料 |
- |
物件番号 |
6975675645 |
| 情報公開日 |
2025年12月10日 |
次回更新予定日 |
2025年12月24日 |
| ケータイ用バーコード |
- スマートフォンでこの物件を見る
- スマートフォンからもこの物件をご覧になれます。
|
※「-」と表示されている項目については、情報提供会社にご確認ください。
| 周辺施設 |
ローソン伊集院チェスト館前店 |
| 距離 |
264m |
| 周辺施設 |
日置市伊集院都市農村交流施設チェスト館 |
| 距離 |
550m |
| 周辺施設 |
ニコニコレンタカー鹿児島松元インター店 |
| 距離 |
2436m |
ここから簡単にお問い合わせをすることができます。
(SSLでの暗号化での送信を希望されるお客さまは
こちら
よりお問い合わせください)
お問い合わせを行う前に
「個人情報の取り扱いについて」を必ずお読みください。
「個人情報の取り扱いについて」に同意いただいた場合は「上記にご同意の上 確認画面へ進む」のボタンをクリックしてください。
個人情報の取り扱いについて
皆さまが送付された個人情報はアットホーム(株)のサーバを経由し、お問い合わせ先の不動産会社にメールまたはFAXにて転送されるためアットホーム(株)にも保管されます。アットホーム(株)で保管された個人情報の取り扱いについては、【こちら】をご覧ください。
また、本画面でご記入いただいた個人情報は、お問い合わせ先の不動産会社でも保管します。 お問い合わせ先の不動産会社が保管する個人情報の取り扱いについては、不動産会社に直接お問い合わせください。
鹿児島県知事免許(3)第5933号 |
|---|
- 交通:
- 鹿児島市電唐湊線/神田(交通局前)駅 徒歩7分 【バス】 唐湊郵便局前 停歩3分
- 鹿児島県鹿児島市唐湊1丁目15-12
- TEL:
- 099-254-6002
- FAX:
- 099-254-6004
- 所属団体:
- (公社)鹿児島県宅地建物取引業協会会員(一社)九州不動産公正取引協議会加盟
取引態様:仲介  - 80501922
|
- スマートフォンで
この不動産会社を見る

|
- 提携サイト等より掲載されている物件情報につきましては、不動産会社詳細情報にリンクされていないものがあります。
- 物件に関するお問合せは、物件詳細ページの「情報提供会社」に表示されている不動産会社へ直接お願いいたします。
- 間取図は、現況を優先させていただきます。
- 映像は物件の一部を撮影したものです。物件の契約にあたっての最終判断はご自身の判断に基づいて行ってください。
- 仲介手数料について

アットホームは物件情報の適正化に努めております。
内容に誤りがある場合にはこちらへご連絡ください。