兵庫県姫路市野里(京口駅)の貸店舗:物件詳細

  • 物件詳細
  • 情報の見方
  • 印刷用画面
交通
所在地
駅徒歩 賃料
管理費等
敷金/保証金
礼金
使用部分面積
坪数/坪単価
物件種目
築年月

JR播但線/京口 新着

兵庫県姫路市野里

11分

22.55万円

1ヶ月 / なし

3ヶ月

173.19m²

52.38坪/0.4305万円

貸店舗

1979年1月(築47年1ヶ月)

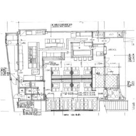
間取図

間取図

概略図です。図面と相違ある場合は現況優先です。

外観

外観

元は お好み焼き店→インドネパール料理店です 敷地内空地には3台分の駐車スペースがあります。

その他の画像
  • 室内
    • お問い合わせ
    交通

    JR播但線 京口駅 徒歩11分

    所在地 兵庫県姫路市野里
    物件種目 貸店舗
    賃料 22.55万円 管理費等
    敷金 / 保証金 1ヶ月 / なし 礼金 3ヶ月
    敷引 坪単価 0.4305万円
    保証金償却 権利金
    造作譲渡 その他一時金
    維持費等 保険等 要 店舗総合保険など
    使用部分面積 173.19m² 坪数 52.38坪
    築年月 1979年1月(築47年1ヶ月) 階建 / 階 2階建 / 1階
    駐車場 バイク置き場
    駐輪場 土地面積
    接道状況 用途地域 1種住居
    間取り 建物構造 鉄骨造
    建物名・部屋番号 野里飲食店舗1F(まつや跡)
    リフォーム履歴
    リノベーション履歴
    特記事項 飲食店可、駐車場3台分以上
    備考
    賃貸保証等:加入要(日本セーフティ 22.55 万円(初年度))
    管理形態/管理員の勤務形態:-/-
    厨房、空調、給湯器、什器備品、照明器具、便器など建物内すべてのものは残置物。(設備保証なし)
    エネルギー消費性能
    断熱性能
    目安光熱費
    バス・トイレ
    キッチン
    設備・サービス 看板取付スペースあり、グリストラップあり
    その他
    契約期間 2年 条件等
    引渡可能時期 指定有り2026年1月15日 現況
    更新料 物件番号 6979858822
    情報公開日 2025年12月29日 次回更新予定日 2026年1月14日
    ケータイ用バーコード

    QRコード

    スマートフォンでこの物件を見る
    スマートフォンからもこの物件をご覧になれます。
    ※「-」と表示されている項目については、情報提供会社にご確認ください。

    この物件の周辺情報

    周辺施設 マルアイアンビック店
    距離 171m
    周辺施設 ローソン姫路野里店
    距離 497m
    周辺施設 DiREX城東店
    距離 24m

    クイックお問い合わせ

    ここから簡単にお問い合わせをすることができます。
    (SSLでの暗号化での送信を希望されるお客さまは こちら よりお問い合わせください)

    お問い合わせ内容(必須)
    物件のお問い合わせ理由(必須)
    お名前・ご担当者様名(必須) 姓  名 
    メールアドレス(必須)
    ※携帯電話のメールアドレスをご入力される方はこちらをご確認ください
    電話番号(必須)
    - -
    備考欄 希望条件、物件案内希望日、質問などがございましたらご記入ください。
    お問い合わせを行う前に「個人情報の取り扱いについて」を必ずお読みください。
    「個人情報の取り扱いについて」に同意いただいた場合は「上記にご同意の上 確認画面へ進む」のボタンをクリックしてください。

    個人情報の取り扱いについて

    皆さまが送付された個人情報はアットホーム(株)のサーバを経由し、お問い合わせ先の不動産会社にメールまたはFAXにて転送されるためアットホーム(株)にも保管されます。アットホーム(株)で保管された個人情報の取り扱いについては、【こちら】をご覧ください。
    また、本画面でご記入いただいた個人情報は、お問い合わせ先の不動産会社でも保管します。 お問い合わせ先の不動産会社が保管する個人情報の取り扱いについては、不動産会社に直接お問い合わせください。

    情報提供会社

    情報提供会社

    アルステーション不動産

    兵庫県知事免許(3)第401444号

    交通:
    JR山陽本線/宝殿駅 【バス】10分 中島 停歩5分
    兵庫県高砂市今市2丁目8-27 
    TEL:
    079-440-9001
    FAX:
    079-440-9010
    所属団体:
    (一社)兵庫県宅地建物取引業協会会員
    (公社)近畿地区不動産公正取引協議会加盟

    取引態様:仲介

    • 会社情報
    • 50025458
    スマートフォンで
    この不動産会社を見る
    QRコード
    • お問い合わせ
    • 提携サイト等より掲載されている物件情報につきましては、不動産会社詳細情報にリンクされていないものがあります。
    • 物件に関するお問合せは、物件詳細ページの「情報提供会社」に表示されている不動産会社へ直接お願いいたします。
    • 間取図は、現況を優先させていただきます。
    • 映像は物件の一部を撮影したものです。物件の契約にあたっての最終判断はご自身の判断に基づいて行ってください。
    • 仲介手数料について仲介手数料

    アットホームは物件情報の適正化に努めております。 内容に誤りがある場合にはこちらへご連絡ください。


    アットホームのページへ
    物件画像: