滋賀県長浜市山階町(長浜駅)の貸店舗:物件詳細

  • 物件詳細
  • 情報の見方
  • 印刷用画面
交通
所在地
駅徒歩 賃料
管理費等
敷金/保証金
礼金
使用部分面積
坪数/坪単価
物件種目
築年月

JR北陸本線/長浜

滋賀県長浜市山階町

4000m

41.25万円

34,100円

6ヶ月 / なし

なし

176.08m²

53.26坪/0.7745万円

貸店舗・事務所

2000年10月(築25年1ヶ月)

おすすめコメント

使用面積50坪以上・お洒落な外観の賃貸物件です!大型共用駐車場・近隣に商業店舗多数有り!国道沿いへもアクセス良。

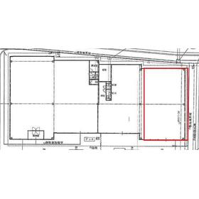
間取図

間取図

その他の画像
    • お問い合わせ
    交通

    JR北陸本線 長浜駅 徒歩4000m

    その他の交通

    JR北陸本線 田村駅 徒歩6000m

    JR北陸本線 坂田駅 徒歩9200m

    所在地 滋賀県長浜市山階町
    物件種目 貸店舗・事務所
    賃料 41.25万円 管理費等 34,100円
    敷金 / 保証金 6ヶ月 / なし 礼金 なし
    敷引 坪単価 0.7745万円
    保証金償却 権利金
    造作譲渡 その他一時金
    維持費等 保険等 要 借家責任付き家財
    使用部分面積 176.08m² 坪数 53.26坪
    築年月 2000年10月(築25年1ヶ月) 階建 / 階 1階建 / 1階
    駐車場 有 無料
    大型共用駐車場(※お客様フリー・スタッフ用は貸主指定場所/台数含めご相談)
    バイク置き場
    駐輪場 土地面積
    接道状況 東 7.0m 用途地域 近隣商業
    間取り 建物構造 鉄骨造
    アピールポイント 長浜市内の商業施設・敷地内店舗!
    (※写真は現況のもの/ご参考まで)
    ご興味のある方・マッチングする方は、是非お問い合わせ下さい。
    当店にて資料請求可・ご案内・ご説明致します。
    建物名・部屋番号  
    リフォーム履歴
    リノベーション履歴
    特記事項 飲食店可、角部屋
    備考
    賃貸保証等:加入要(初回時 賃料(共益費等含む)1ヶ月分・更新時(年)賃料(共益費等含む)の10%・毎月:収納代行手数料(税込)330円)。)
    管理形態/管理員の勤務形態:-/-
    *基本、現状有姿渡し(現状居酒屋仕様・スケルトン渡しご相談)の原状回復。
    *設備:上下水道・電気・Pガス。共益費は賃料に含む。
    *改装の場合、貸主に事前承諾が必要。また、事前の図面等の提出も必要。
    *隣地にレストラン・カフェ・飲食店、理美容店等、多数有り。
    ※造作工事業者のご相談有り。
    エネルギー消費性能
    断熱性能
    目安光熱費
    バス・トイレ
    キッチン
    設備・サービス 看板取付スペースあり
    プロパンガス
    その他
    契約期間 10年 条件等
    引渡可能時期 相談 現況
    更新料 物件番号 6981744805
    情報公開日 2025年9月13日 次回更新予定日 2025年10月20日
    ケータイ用バーコード

    QRコード

    スマートフォンでこの物件を見る
    スマートフォンからもこの物件をご覧になれます。
    ※「-」と表示されている項目については、情報提供会社にご確認ください。

    クイックお問い合わせ

    ここから簡単にお問い合わせをすることができます。
    (SSLでの暗号化での送信を希望されるお客さまは こちら よりお問い合わせください)

    お問い合わせ内容(必須)
    物件のお問い合わせ理由(必須)
    お名前・ご担当者様名(必須) 姓  名 
    メールアドレス(必須)
    ※携帯電話のメールアドレスをご入力される方はこちらをご確認ください
    電話番号(必須)
    - -
    備考欄 希望条件、物件案内希望日、質問などがございましたらご記入ください。
    お問い合わせを行う前に「個人情報の取り扱いについて」を必ずお読みください。
    「個人情報の取り扱いについて」に同意いただいた場合は「上記にご同意の上 確認画面へ進む」のボタンをクリックしてください。

    個人情報の取り扱いについて

    皆さまが送付された個人情報はアットホーム(株)のサーバを経由し、お問い合わせ先の不動産会社にメールまたはFAXにて転送されるためアットホーム(株)にも保管されます。アットホーム(株)で保管された個人情報の取り扱いについては、【こちら】をご覧ください。
    また、本画面でご記入いただいた個人情報は、お問い合わせ先の不動産会社でも保管します。 お問い合わせ先の不動産会社が保管する個人情報の取り扱いについては、不動産会社に直接お問い合わせください。

    情報提供会社

    情報提供会社

    ネジマックス(株)

    滋賀県知事免許(1)第3964号

    交通:
    JR東海道本線/南彦根駅 徒歩30分 【バス】1分 湖国バス(文化プラザ口) 停歩2分
    滋賀県彦根市戸賀町95-18 TCビル1F
    TEL:
    0749-21-0515
    FAX:
    0749-21-0530
    所属団体:
    (公社)滋賀県宅地建物取引業協会会員
    (公社)近畿地区不動産公正取引協議会加盟

    取引態様:仲介

    • 会社情報
    • 50109584
    スマートフォンで
    この不動産会社を見る
    QRコード
    • お問い合わせ
    • 提携サイト等より掲載されている物件情報につきましては、不動産会社詳細情報にリンクされていないものがあります。
    • 物件に関するお問合せは、物件詳細ページの「情報提供会社」に表示されている不動産会社へ直接お願いいたします。
    • 間取図は、現況を優先させていただきます。
    • 映像は物件の一部を撮影したものです。物件の契約にあたっての最終判断はご自身の判断に基づいて行ってください。
    • 仲介手数料について仲介手数料

    アットホームは物件情報の適正化に努めております。 内容に誤りがある場合にはこちらへご連絡ください。


    アットホームのページへ
    物件画像: