愛知県春日井市鳥居松町4丁目(春日井駅)の貸店舗:物件詳細
交通 所在地 |
駅徒歩 |
賃料 管理費等 |
敷金/保証金 礼金 |
使用部分面積 坪数/坪単価 |
物件種目 築年月 |
JR中央線/春日井
愛知県春日井市鳥居松町4丁目
|
17分
|
10.23万円
11,800円
|
なし / 3ヶ月
1ヶ月
|
39.38m²
11.91坪/0.8588万円
|
貸店舗・事務所
1979年3月(築46年8ヶ月)
|
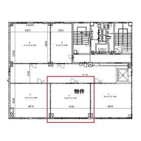
間取図
D区画
|
|
その他の画像
|
交通 | JR中央線 春日井駅 徒歩17分 |
所在地 |
愛知県春日井市鳥居松町4丁目
|
物件種目 |
貸店舗・事務所 |
賃料 |
10.23万円 |
管理費等 |
11,800円 |
敷金 / 保証金 |
なし / 3ヶ月 |
礼金 |
1ヶ月 |
敷引 |
- |
坪単価 |
0.8588万円 |
保証金償却 |
解約時50% |
権利金 |
- |
造作譲渡 |
- |
その他一時金 |
- |
維持費等 |
- |
保険等 |
要 |
使用部分面積 |
39.38m² |
坪数 |
11.91坪 |
築年月 |
1979年3月(築46年8ヶ月)
|
階建 / 階 |
5階建 / 3階 |
駐車場 |
有 10,000円/月 複数台数相談可 |
バイク置き場 |
- |
駐輪場 |
- |
土地面積 |
507.19m²(公簿) |
接道状況 |
南東 22.0m 公道
|
用途地域 |
商業地域 |
間取り |
ワンルーム |
建物構造 |
RC |
アピールポイント |
事務所や店舗での使用にオススメ
美容・介護・スクールなどに♪
・区分前の為、専用部分相談可
(区分工事後お引渡し)
・ワンフロア使用相談可
・トイレ、給湯室、エレベーター共用
・駐車場あり(別途契約)
・SECOM管理(6,800円/月)
*出店業種等ご相談ください。 |
建物名・部屋番号 |
|
リフォーム履歴 |
- |
リノベーション履歴 |
- |
特記事項 |
スケルトン、土日・祝日利用可、飲食店不可 |
備考 |
賃貸保証等:加入要(日本セーフティー:初回総賃料100%、月額0.8%)
管理形態/管理員の勤務形態:-/-
・事務所、店舗使用可
・区分前の為、専用部分相談可
(区分工事後お引渡し)
・ワンフロア使用相談可
・トイレ、給湯室、エレベーター共用
・SECOM管理
・トイレ改修予定
*共益費には水道代が含まれます
専有部分の電気代は個別契約となります
リフォーム相談、施工相談可
|
エネルギー消費性能 |
- |
断熱性能 |
- |
目安光熱費 |
- |
バス・トイレ |
共用部分に男女別トイレあり |
キッチン |
- |
設備・サービス |
エアコン |
その他 |
エレベーター |
契約期間 |
2年 |
条件等 |
- |
引渡可能時期 |
即時 |
現況 |
空 |
仲介手数料 |
1ヶ月 |
適格請求書発行 |
可
|
更新料 |
- |
物件番号 |
6983150943 |
情報公開日 |
2024年8月6日 |
次回更新予定日 |
2025年10月19日 |
ケータイ用バーコード |
- スマートフォンでこの物件を見る
- スマートフォンからもこの物件をご覧になれます。
|
※「-」と表示されている項目については、情報提供会社にご確認ください。
周辺施設 |
セブンイレブン春日井鳥居松町店 |
距離 |
231m |
周辺施設 |
デニーズ春日井バイパス店 |
距離 |
517m |
ここから簡単にお問い合わせをすることができます。
(SSLでの暗号化での送信を希望されるお客さまは
こちら
よりお問い合わせください)
お問い合わせを行う前に
「個人情報の取り扱いについて」を必ずお読みください。
「個人情報の取り扱いについて」に同意いただいた場合は「上記にご同意の上 確認画面へ進む」のボタンをクリックしてください。
個人情報の取り扱いについて
皆さまが送付された個人情報はアットホーム(株)のサーバを経由し、お問い合わせ先の不動産会社にメールまたはFAXにて転送されるためアットホーム(株)にも保管されます。アットホーム(株)で保管された個人情報の取り扱いについては、【こちら】をご覧ください。
また、本画面でご記入いただいた個人情報は、お問い合わせ先の不動産会社でも保管します。 お問い合わせ先の不動産会社が保管する個人情報の取り扱いについては、不動産会社に直接お問い合わせください。
愛知県知事免許(2)第24445号 |
---|
- 交通:
- JR中央線/高蔵寺駅
- 愛知県春日井市明知町1334-1 1階
- TEL:
- 0568-29-9088
- FAX:
- 0568-29-9089
- 所属団体:
- (公社)愛知県宅地建物取引業協会会員東海不動産公正取引協議会加盟
取引態様:仲介  - 40408736
|
- スマートフォンで
この不動産会社を見る

|
- 提携サイト等より掲載されている物件情報につきましては、不動産会社詳細情報にリンクされていないものがあります。
- 物件に関するお問合せは、物件詳細ページの「情報提供会社」に表示されている不動産会社へ直接お願いいたします。
- 間取図は、現況を優先させていただきます。
- 映像は物件の一部を撮影したものです。物件の契約にあたっての最終判断はご自身の判断に基づいて行ってください。
- 仲介手数料について

アットホームは物件情報の適正化に努めております。
内容に誤りがある場合にはこちらへご連絡ください。