愛知県名古屋市中区栄3丁目(矢場町駅)の貸店舗:物件詳細
交通 所在地 |
駅徒歩 |
賃料 管理費等 |
敷金/保証金 礼金 |
使用部分面積 坪数/坪単価 |
物件種目 築年月 |
|
名古屋市名城線/矢場町
愛知県名古屋市中区栄3丁目
|
9分
|
10.78万円
4,078円
|
なし / 5ヶ月
なし
|
42.90m²
12.97坪/0.8307万円
|
貸店舗・事務所
1963年9月(築62年8ヶ月)
|
|
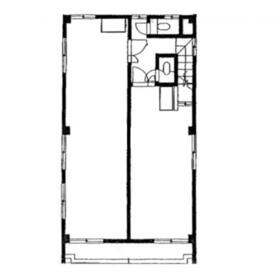
間取図
|
室内
|
<
その他の画像
>
|
| 交通 | 名古屋市名城線 矢場町駅 徒歩9分 |
|---|
| その他の交通 | 名古屋市鶴舞線 伏見駅 徒歩10分 名古屋市名城線 栄駅 徒歩10分 |
| 所在地 |
愛知県名古屋市中区栄3丁目
|
| 物件種目 |
貸店舗・事務所 |
| 賃料 |
10.78万円 |
管理費等 |
4,078円 |
| 敷金 / 保証金 |
なし / 5ヶ月 |
礼金 |
なし |
| 敷引 |
- |
坪単価 |
0.8307万円 |
| 保証金償却 |
解約時2ヶ月 |
権利金 |
- |
| 造作譲渡 |
- |
その他一時金 |
- |
| 維持費等 |
電気基本料金:858円/月、動力基本料金:3,413円/月、町内会費:200円/月 |
保険等 |
要 |
| 使用部分面積 |
42.90m² |
坪数 |
12.97坪 |
| 築年月 |
1963年9月(築62年8ヶ月)
|
階建 / 階 |
3階建 / 3階 |
| 駐車場 |
- |
バイク置き場 |
- |
| 駐輪場 |
- |
土地面積 |
- |
| 接道状況 |
-
|
用途地域 |
- |
| 間取り |
- |
建物構造 |
鉄骨造 |
| アピールポイント |
株式会社おうち広場と申します。
弊社は事業用賃貸を初め、リフォーム・解体・売買等幅広く取り扱いをしております。
是非リフォーム・解体のご相談も承りますのでお気軽にご相談くださいませ。
TEL052-228-4673 FAX052-228-4674
公式lineもございます!お気軽にお問合せくださいませ。
公式line ID:@543xokiv(@も含んで検索) |
| 建物名・部屋番号 |
3B |
| リフォーム履歴 |
- |
| リノベーション履歴 |
- |
| 特記事項 |
土曜日利用可、土日・祝日利用可、飲食店不可、角部屋、最上階、天井高2.5M以上、保証人不要 |
| 備考 |
賃貸保証等:加入要(加入必須)
管理形態/管理員の勤務形態:-/-
|
| エネルギー消費性能 |
- |
| 断熱性能 |
- |
| 目安光熱費 |
- |
| バス・トイレ |
共用部分にトイレあり |
| キッチン |
- |
| 設備・サービス |
個別空調、エアコン2台以上、動力あり、ビルトインエアコン、エアコン、暖房、冷房、インターネット対応、光ファイバー |
| その他 |
- |
| 契約期間 |
2年 |
条件等 |
- |
| 引渡可能時期 |
即時 |
現況 |
空 |
| 適格請求書発行 |
可
|
| 更新料 |
- |
物件番号 |
6983443723 |
| 情報公開日 |
2025年10月24日 |
次回更新予定日 |
2026年4月10日 |
| ケータイ用バーコード |
- スマートフォンでこの物件を見る
- スマートフォンからもこの物件をご覧になれます。
|
※「-」と表示されている項目については、情報提供会社にご確認ください。
| 周辺施設 |
ローソン呉服町通店 |
| 距離 |
152m |
写真を見る |
| 周辺施設 |
ファミリーマート栄二丁目店 |
| 距離 |
192m |
写真を見る |
| 周辺施設 |
セブンイレブン名古屋ナディアパーク前店 |
| 距離 |
230m |
写真を見る |
| 周辺施設 |
アルペンNAGOYA |
| 距離 |
289m |
写真を見る |
| 周辺施設 |
ナディアパーク |
| 距離 |
353m |
写真を見る |
| 周辺施設 |
名古屋中郵便局 |
| 距離 |
391m |
写真を見る |
| 周辺施設 |
名古屋市中区中消防署本署 |
| 距離 |
911m |
写真を見る |
ここから簡単にお問い合わせをすることができます。
(SSLでの暗号化での送信を希望されるお客さまは
こちら
よりお問い合わせください)
お問い合わせを行う前に
「個人情報の取り扱いについて」を必ずお読みください。
「個人情報の取り扱いについて」に同意いただいた場合は「上記にご同意の上 確認画面へ進む」のボタンをクリックしてください。
個人情報の取り扱いについて
皆さまが送付された個人情報はアットホーム(株)のサーバを経由し、お問い合わせ先の不動産会社にメールまたはFAXにて転送されるためアットホーム(株)にも保管されます。アットホーム(株)で保管された個人情報の取り扱いについては、【こちら】をご覧ください。
また、本画面でご記入いただいた個人情報は、お問い合わせ先の不動産会社でも保管します。 お問い合わせ先の不動産会社が保管する個人情報の取り扱いについては、不動産会社に直接お問い合わせください。
愛知県知事免許(2)第24143号 |
|---|
- 交通:
- 名古屋市鶴舞線/丸の内駅 徒歩2分
- 愛知県名古屋市中区丸の内2丁目10-30 インテリジェント林ビル602
- TEL:
- 052-228-4673
- FAX:
- 052-228-4674
- 所属団体:
- (公社)全日本不動産協会会員東海不動産公正取引協議会加盟
取引態様:仲介  - 40410593
|
- スマートフォンで
この不動産会社を見る

|
- 提携サイト等より掲載されている物件情報につきましては、不動産会社詳細情報にリンクされていないものがあります。
- 物件に関するお問合せは、物件詳細ページの「情報提供会社」に表示されている不動産会社へ直接お願いいたします。
- 間取図は、現況を優先させていただきます。
- 映像は物件の一部を撮影したものです。物件の契約にあたっての最終判断はご自身の判断に基づいて行ってください。
- 仲介手数料について

アットホームは物件情報の適正化に努めております。
内容に誤りがある場合にはこちらへご連絡ください。