静岡県掛川市細田(桜木駅)の貸店舗:物件詳細

  • 物件詳細
  • 情報の見方
  • 印刷用画面
交通
所在地
駅徒歩 賃料
管理費等
敷金/保証金
礼金
使用部分面積
坪数/坪単価
物件種目
築年月

天竜浜名湖鉄道/桜木

静岡県掛川市細田

15分

27万円

3ヶ月 / なし

なし

158.00m²

47.79坪/0.565万円

貸店舗・事務所

1971年4月(築54年7ヶ月)

おすすめコメント

中2階が一部にあり、デザイン次第でおしゃれなカフェとか雑貨店とかが向いているかもしれません。車屋等にも適してます。

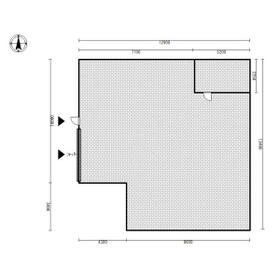
間取図

間取図

その他の画像
    • お問い合わせ
    交通

    天竜浜名湖鉄道 桜木駅 徒歩15分

    所在地 静岡県掛川市細田
    物件種目 貸店舗・事務所
    賃料 27万円 管理費等
    敷金 / 保証金 3ヶ月 / なし 礼金 なし
    敷引 坪単価 0.565万円
    保証金償却 権利金
    造作譲渡 その他一時金
    維持費等 保険等
    使用部分面積 158.00m² 坪数 47.79坪
    築年月 1971年4月(築54年7ヶ月) 階建 / 階 2階建 / 1階
    駐車場 有 無料
    30台以上を他入居者と共有利用
    バイク置き場
    駐輪場 土地面積
    接道状況 西 7.0m 公道 接面30.0m 用途地域
    間取り 建物構造 鉄骨造
    アピールポイント 敷地広く駐車場も多いため、店舗向きな立地です。西側道路からの見通しも良いため視認性も良いところでです。
    建物名・部屋番号  
    リフォーム履歴
    リノベーション履歴
    特記事項
    備考
    賃貸保証等:加入要(初回賃料の67.5%、以後1年ごとに更新料あり)
    管理形態/管理員の勤務形態:-/-
    主要採光面:西向き
    現況約160㎡(48坪)の一部に中2階のある倉庫です。希望によっては分割利用も可能です。駐車場
    は建物前に30台以上分あり、他テナントとの共用利用となります。
    エネルギー消費性能
    断熱性能
    目安光熱費
    バス・トイレ
    キッチン
    設備・サービス
    その他
    契約期間 2年 条件等
    引渡可能時期 相談 現況
    更新料 なし 物件番号 6986463291
    情報公開日 2025年6月2日 次回更新予定日 2025年10月6日
    ケータイ用バーコード

    QRコード

    スマートフォンでこの物件を見る
    スマートフォンからもこの物件をご覧になれます。
    ※「-」と表示されている項目については、情報提供会社にご確認ください。

    この物件の周辺情報

    周辺施設 ジーユー掛川店
    距離 336m
    周辺施設 セブンイレブン掛川下垂木店
    距離 569m
    周辺施設 スターバックスコーヒー掛川細田店
    距離 463m

    クイックお問い合わせ

    ここから簡単にお問い合わせをすることができます。
    (SSLでの暗号化での送信を希望されるお客さまは こちら よりお問い合わせください)

    お問い合わせ内容(必須)
    物件のお問い合わせ理由(必須)
    お名前・ご担当者様名(必須) 姓  名 
    メールアドレス(必須)
    ※携帯電話のメールアドレスをご入力される方はこちらをご確認ください
    電話番号(必須)
    - -
    備考欄 希望条件、物件案内希望日、質問などがございましたらご記入ください。
    お問い合わせを行う前に「個人情報の取り扱いについて」を必ずお読みください。
    「個人情報の取り扱いについて」に同意いただいた場合は「上記にご同意の上 確認画面へ進む」のボタンをクリックしてください。

    個人情報の取り扱いについて

    皆さまが送付された個人情報はアットホーム(株)のサーバを経由し、お問い合わせ先の不動産会社にメールまたはFAXにて転送されるためアットホーム(株)にも保管されます。アットホーム(株)で保管された個人情報の取り扱いについては、【こちら】をご覧ください。
    また、本画面でご記入いただいた個人情報は、お問い合わせ先の不動産会社でも保管します。 お問い合わせ先の不動産会社が保管する個人情報の取り扱いについては、不動産会社に直接お問い合わせください。

    情報提供会社

    情報提供会社

    桂ハウステック(株)

    静岡県知事免許(11)第5129号

    交通:
    東海道本線/掛川駅 徒歩7分
    静岡県掛川市掛川482-1 
    TEL:
    0537-23-8588
    FAX:
    0537-23-8570
    所属団体:
    (公社)静岡県宅地建物取引業協会会員
    東海不動産公正取引協議会加盟

    取引態様:仲介

    • 会社情報
    • 40301285
    スマートフォンで
    この不動産会社を見る
    QRコード
    • お問い合わせ
    • 提携サイト等より掲載されている物件情報につきましては、不動産会社詳細情報にリンクされていないものがあります。
    • 物件に関するお問合せは、物件詳細ページの「情報提供会社」に表示されている不動産会社へ直接お願いいたします。
    • 間取図は、現況を優先させていただきます。
    • 映像は物件の一部を撮影したものです。物件の契約にあたっての最終判断はご自身の判断に基づいて行ってください。
    • 仲介手数料について仲介手数料

    アットホームは物件情報の適正化に努めております。 内容に誤りがある場合にはこちらへご連絡ください。


    アットホームのページへ
    物件画像: