静岡県菊川市川上(菊川駅)の貸店舗:物件詳細

  • 物件詳細
  • 情報の見方
  • 印刷用画面
交通
所在地
駅徒歩 賃料
管理費等
敷金/保証金
礼金
使用部分面積
坪数/坪単価
物件種目
築年月

東海道本線/菊川

静岡県菊川市川上

9300m

8.8万円

なし

2ヶ月 / なし

なし

121.50m²

36.75坪/0.2395万円

貸店舗・事務所

1992年12月(築32年11ヶ月)

おすすめコメント  スタッフ: 渋谷 暢之

2階建て建物の2階部分の募集です。専用階段も完備しております。トイレについては、入居が決まり次第、新設する予定となっております。

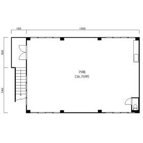
間取図

間取図

外観

外観

<
その他の画像
  • 外観
  • 外観
  • 外観
  • エントランス
  • ショッピング施設
  • ショッピング施設
  • コンビニ
  • 販売店
  • 販売店
  • 販売店
  • 小学校
  • 郵便局
>
    • お問い合わせ
    交通

    東海道本線 菊川駅 徒歩9300m

    所在地 静岡県菊川市川上
    物件種目 貸店舗・事務所
    賃料 8.8万円 管理費等 なし
    敷金 / 保証金 2ヶ月 / なし 礼金 なし
    敷引 坪単価 0.2395万円
    保証金償却 権利金
    造作譲渡 造作譲渡無償 その他一時金
    維持費等 保険等 要 2年 火災
    クレジットカード決済 初期費用可
    使用部分面積 121.50m² 坪数 36.75坪
    築年月 1992年12月(築32年11ヶ月) 階建 / 階 2階建 / 2階
    駐車場 有 無料
    3台まで無料です。(3台以上ご希望の場合もご相談可能です。1台:3300円/月)
    バイク置き場 有 無料
    駐輪場 有 無料 土地面積
    接道状況 用途地域 無指定
    間取り ワンルーム(洋 75) 建物構造 鉄骨造
    アピールポイント 2階建ての建物の2階まるごとお貸しします!玄関は専用階段&屋根付きで、雨の日も安心。室内には事務用品もあり、使いたいものがあれば譲渡のご相談OKです。駐車場は3台まで無料、4台目以降も1台3,300円で追加できます。ご希望があればトイレの新設も可能。事務所や教室など、いろんな使い方にぴったりの物件です!
    建物名・部屋番号  
    リフォーム履歴 ■外装:2025年6月
    外壁、屋根
    ※実施年月は最も古い履歴を表示
    リノベーション履歴
    特記事項 土曜日利用可、土日・祝日利用可、飲食店可、角部屋、最上階、IT重説対応物件
    備考
    賃貸保証等:加入要(初回保証料:月額総賃料100% 更新料:あり)
    管理形態/管理員の勤務形態:-/-
    IT重説対応物件
    エネルギー消費性能
    断熱性能
    目安光熱費
    バス・トイレ 専有部分にトイレあり
    キッチン
    設備・サービス 換気口あり、排煙設備あり
    火災警報器(報知機)
    その他
    契約期間 2年 条件等
    引渡可能時期 即時 現況
    仲介手数料 不要    
    更新料 なし 物件番号 6987037159
    情報公開日 2025年7月17日 次回更新予定日 2025年10月13日
    ケータイ用バーコード

    QRコード

    スマートフォンでこの物件を見る
    スマートフォンからもこの物件をご覧になれます。
    ※「-」と表示されている項目については、情報提供会社にご確認ください。

    この物件の周辺情報

    周辺施設 フードマーケットMom小笠店
    距離 2517m
    周辺施設 スーパー田子重小笠店
    距離 2603m
    周辺施設 セブンイレブン菊川赤土店
    距離 2094m
    周辺施設 杏林堂スーパードラッグストア小笠店
    距離 2187m
    周辺施設 ウエルシア菊川赤土店
    距離 2535m
    周辺施設 コメリハード&グリーン小笠店
    距離 2530m
    周辺施設 菊川市立小笠東小学校
    距離 252m
    周辺施設 川上郵便局
    距離 260m

    クイックお問い合わせ

    ここから簡単にお問い合わせをすることができます。
    (SSLでの暗号化での送信を希望されるお客さまは こちら よりお問い合わせください)

    お問い合わせ内容(必須)
    物件のお問い合わせ理由(必須)
    お名前・ご担当者様名(必須) 姓  名 
    メールアドレス(必須)
    ※携帯電話のメールアドレスをご入力される方はこちらをご確認ください
    電話番号(必須)
    - -
    備考欄 希望条件、物件案内希望日、質問などがございましたらご記入ください。
    お問い合わせを行う前に「個人情報の取り扱いについて」を必ずお読みください。
    「個人情報の取り扱いについて」に同意いただいた場合は「上記にご同意の上 確認画面へ進む」のボタンをクリックしてください。

    個人情報の取り扱いについて

    皆さまが送付された個人情報はアットホーム(株)のサーバを経由し、お問い合わせ先の不動産会社にメールまたはFAXにて転送されるためアットホーム(株)にも保管されます。アットホーム(株)で保管された個人情報の取り扱いについては、【こちら】をご覧ください。
    また、本画面でご記入いただいた個人情報は、お問い合わせ先の不動産会社でも保管します。 お問い合わせ先の不動産会社が保管する個人情報の取り扱いについては、不動産会社に直接お問い合わせください。

    情報提供会社

    情報提供会社

    (株)ライフイン企画

    静岡県知事免許(8)第10001号

    交通:
    東海道本線/菊川駅 【バス】18分 平田 停歩1分
    静岡県菊川市下平川5161-1-1F 
    TEL:
    0537-73-6262
    FAX:
    0537-73-6335
    所属団体:
    (公社)静岡県宅地建物取引業協会会員
    東海不動産公正取引協議会加盟

    取引態様:貸主

    • 会社情報
    • 40301353
    スマートフォンで
    この不動産会社を見る
    QRコード
    • お問い合わせ
    • 提携サイト等より掲載されている物件情報につきましては、不動産会社詳細情報にリンクされていないものがあります。
    • 物件に関するお問合せは、物件詳細ページの「情報提供会社」に表示されている不動産会社へ直接お願いいたします。
    • 間取図は、現況を優先させていただきます。
    • 映像は物件の一部を撮影したものです。物件の契約にあたっての最終判断はご自身の判断に基づいて行ってください。
    • 仲介手数料について仲介手数料

    アットホームは物件情報の適正化に努めております。 内容に誤りがある場合にはこちらへご連絡ください。


    アットホームのページへ
    物件画像: