千葉県旭市ニ(旭駅)の貸店舗:物件詳細

  • 物件詳細
  • 情報の見方
  • 印刷用画面
交通
所在地
駅徒歩 賃料
管理費等
敷金/保証金
礼金
使用部分面積
坪数/坪単価
物件種目
築年月

JR総武本線/

千葉県旭市ニ

18分

13.2万円

16,000円

1ヶ月 / なし

1ヶ月

101.75m²

30.77坪/0.4289万円

貸店舗

1992年1月(築34年4ヶ月)

おすすめコメント

126号線の1本裏通りにある車庫付きのテナント募集です(^^)事務所利用に最適☆毎月の水道料金が共益費に含まれておりますのでテナントの使用業種によって共益費の金額が変動いたします。

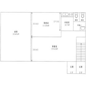
間取図

間取図

<
その他の画像
>
    • お問い合わせ
    交通

    JR総武本線 旭駅 徒歩18分

    所在地 千葉県旭市ニ
    物件種目 貸店舗
    賃料 13.2万円 管理費等 16,000円
    敷金 / 保証金 1ヶ月 / なし 礼金 1ヶ月
    敷引 坪単価 0.4289万円
    保証金償却 権利金
    造作譲渡 その他一時金
    維持費等 保険等
    使用部分面積 101.75m² 坪数 30.77坪
    築年月 1992年1月(築34年4ヶ月) 階建 / 階 2階建 / 1階
    駐車場 バイク置き場
    駐輪場 土地面積
    接道状況 用途地域
    間取り 2K 建物構造 鉄骨造
    建物名・部屋番号  
    リフォーム履歴
    リノベーション履歴
    特記事項 飲食店不可、駐車場2台分、駐車場3台分以上
    備考
    賃貸保証等:加入要(初回保証料:賃料総額100%)
    管理形態/管理員の勤務形態:-/-
    主要採光面:南向き
    ・敷金、礼金は仮設定となります。使用業種や保証会社の加入状況をふまえて協議するものといたしますので予めご了承ください。
    ・水道は建物全体の使用料を賃貸人が管理しています。毎月の水道料金は共益費より徴収いたしますので使用業種によって共益費に変動がございます。
    ・更新事務手数料(0.5ヵ月+税)
    ・間取りと現状が相違する場合は、現状優先での引渡しとなります。
    ・駐車場は敷地内の南側をご利用いただけます(建物東側は2階居住者様の専用駐車スペースになります)
    エネルギー消費性能
    断熱性能
    目安光熱費
    バス・トイレ 男女別トイレ、トイレ
    キッチン
    設備・サービス
    その他
    契約期間 5年 条件等
    引渡可能時期 即時 現況
    仲介手数料 1.1ヶ月    
    更新料 新賃料 1ヶ月 物件番号 6987102181
    情報公開日 2025年12月29日 次回更新予定日 2026年4月20日
    ケータイ用バーコード

    QRコード

    スマートフォンでこの物件を見る
    スマートフォンからもこの物件をご覧になれます。
    ※「-」と表示されている項目については、情報提供会社にご確認ください。

    クイックお問い合わせ

    ここから簡単にお問い合わせをすることができます。
    (SSLでの暗号化での送信を希望されるお客さまは こちら よりお問い合わせください)

    お問い合わせ内容(必須)
    物件のお問い合わせ理由(必須)
    お名前・ご担当者様名(必須) 姓  名 
    メールアドレス(必須)
    ※携帯電話のメールアドレスをご入力される方はこちらをご確認ください
    電話番号(必須)
    - -
    備考欄 希望条件、物件案内希望日、質問などがございましたらご記入ください。
    お問い合わせを行う前に「個人情報の取り扱いについて」を必ずお読みください。
    「個人情報の取り扱いについて」に同意いただいた場合は「上記にご同意の上 確認画面へ進む」のボタンをクリックしてください。

    個人情報の取り扱いについて

    皆さまが送付された個人情報はアットホーム(株)のサーバを経由し、お問い合わせ先の不動産会社にメールまたはFAXにて転送されるためアットホーム(株)にも保管されます。アットホーム(株)で保管された個人情報の取り扱いについては、【こちら】をご覧ください。
    また、本画面でご記入いただいた個人情報は、お問い合わせ先の不動産会社でも保管します。 お問い合わせ先の不動産会社が保管する個人情報の取り扱いについては、不動産会社に直接お問い合わせください。

    情報提供会社

    情報提供会社

    (株)アシスト

    千葉県知事免許(2)第17116号

    交通:
    JR総武本線/干潟駅 徒歩18分
    千葉県旭市ニ6016-7 
    TEL:
    0479-62-7721
    FAX:
    0479-62-7726
    所属団体:
    (一社)千葉県宅地建物取引業協会会員
    (公社)首都圏不動産公正取引協議会加盟

    取引態様:仲介

    • 会社情報
    • 00262346
    スマートフォンで
    この不動産会社を見る
    QRコード
    • お問い合わせ
    • 提携サイト等より掲載されている物件情報につきましては、不動産会社詳細情報にリンクされていないものがあります。
    • 物件に関するお問合せは、物件詳細ページの「情報提供会社」に表示されている不動産会社へ直接お願いいたします。
    • 間取図は、現況を優先させていただきます。
    • 映像は物件の一部を撮影したものです。物件の契約にあたっての最終判断はご自身の判断に基づいて行ってください。
    • 仲介手数料について仲介手数料

    アットホームは物件情報の適正化に努めております。 内容に誤りがある場合にはこちらへご連絡ください。


    アットホームのページへ
    物件画像: