岡山県岡山市北区鹿田本町(大元駅)の貸店舗:物件詳細
交通 所在地 |
駅徒歩 |
賃料 管理費等 |
敷金/保証金 礼金 |
使用部分面積 坪数/坪単価 |
物件種目 築年月 |
|
宇野線/大元
岡山県岡山市北区鹿田本町
|
11分
|
16.5万円
7,700円
|
3ヶ月 / なし
1ヶ月
|
102.00m²
30.85坪/0.5348万円
|
貸店舗・事務所
1976年2月(築50年)
|
|
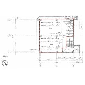
間取図
|
外観
|
<
その他の画像
>
|
| 交通 | 宇野線 大元駅 徒歩11分 |
| 所在地 |
岡山県岡山市北区鹿田本町
|
| 物件種目 |
貸店舗・事務所 |
| 賃料 |
16.5万円 |
管理費等 |
7,700円 |
| 敷金 / 保証金 |
3ヶ月 / なし |
礼金 |
1ヶ月 |
| 敷引 |
- |
坪単価 |
0.5348万円 |
| 保証金償却 |
- |
権利金 |
- |
| 造作譲渡 |
- |
その他一時金 |
- |
| 維持費等 |
- |
保険等 |
- |
| 使用部分面積 |
102.00m² |
坪数 |
30.85坪 |
| 築年月 |
1976年2月(築50年)
|
階建 / 階 |
6階建 / 3階 |
| 駐車場 |
有 19,800円/月(空き2台) 駐車場1レーン使用可能(19800円)縦列駐車2台可能 |
バイク置き場 |
- |
| 駐輪場 |
- |
土地面積 |
- |
| 接道状況 |
-
|
用途地域 |
- |
| 間取り |
- |
建物構造 |
SRC |
| アピールポイント |
1.オフィスビルにはない専用浴室・給湯設備が最大の強みに!
・宿泊施設:家族の付き添いや長期治療での滞在需要が高いエリア。ホテルにはない「自宅のような快適さ」を提供。
・訪問看護:激務後のスタッフの休憩や清潔保持、機材洗浄等に活用でき、採用活動に有利。
・福祉施設:入浴サービスの提供が可能。利用者の集客に有利。
2.視認性の高い県道沿い
3.エレベーター完備のため高齢者やベビーカー利用者もスムーズにご案内可能。
4.敷地内に2台分の駐車スペース(19,800円/月)を確保しており、送迎や来客対応もスムーズです。 |
| 建物名・部屋番号 |
カザハヤビル |
| リフォーム履歴 |
- |
| リノベーション履歴 |
- |
| 特記事項 |
- |
| 備考 |
管理形態/管理員の勤務形態:-/-
広さ102㎡のワンフロアのほか、51㎡に分割してのご入居も可能。
(分割時賃料88,000円、共益費5,500円)
|
| エネルギー消費性能 |
- |
| 断熱性能 |
- |
| 目安光熱費 |
- |
| バス・トイレ |
- |
| キッチン |
- |
| 設備・サービス |
- |
| その他 |
- |
| 契約期間 |
5年 |
条件等 |
定期借家 |
| 引渡可能時期 |
相談 |
現況 |
空 |
| 更新料 |
- |
物件番号 |
6987417802 |
| 情報公開日 |
2025年8月25日 |
次回更新予定日 |
2026年1月30日 |
| ケータイ用バーコード |
- スマートフォンでこの物件を見る
- スマートフォンからもこの物件をご覧になれます。
|
※「-」と表示されている項目については、情報提供会社にご確認ください。
ここから簡単にお問い合わせをすることができます。
(SSLでの暗号化での送信を希望されるお客さまは
こちら
よりお問い合わせください)
お問い合わせを行う前に
「個人情報の取り扱いについて」を必ずお読みください。
「個人情報の取り扱いについて」に同意いただいた場合は「上記にご同意の上 確認画面へ進む」のボタンをクリックしてください。
個人情報の取り扱いについて
皆さまが送付された個人情報はアットホーム(株)のサーバを経由し、お問い合わせ先の不動産会社にメールまたはFAXにて転送されるためアットホーム(株)にも保管されます。アットホーム(株)で保管された個人情報の取り扱いについては、【こちら】をご覧ください。
また、本画面でご記入いただいた個人情報は、お問い合わせ先の不動産会社でも保管します。 お問い合わせ先の不動産会社が保管する個人情報の取り扱いについては、不動産会社に直接お問い合わせください。
岡山県知事免許(2)第5863号 |
|---|
- 交通:
- JR山陽本線/岡山駅 徒歩9分 【バス】5分 岡電バス、宇野バス 柳川停 停歩2分
- 岡山県岡山市北区野田屋町1丁目10-6 ラ・メゾンクリスタⅡ2階
- TEL:
- 086-266-8577
- 所属団体:
- (公社)岡山県宅地建物取引業協会会員中国地区不動産公正取引協議会加盟
取引態様:仲介  - 50104788
|
- スマートフォンで
この不動産会社を見る

|
- 提携サイト等より掲載されている物件情報につきましては、不動産会社詳細情報にリンクされていないものがあります。
- 物件に関するお問合せは、物件詳細ページの「情報提供会社」に表示されている不動産会社へ直接お願いいたします。
- 間取図は、現況を優先させていただきます。
- 映像は物件の一部を撮影したものです。物件の契約にあたっての最終判断はご自身の判断に基づいて行ってください。
- 仲介手数料について

アットホームは物件情報の適正化に努めております。
内容に誤りがある場合にはこちらへご連絡ください。