熊本県宇城市松橋町曲野(松橋駅)の貸店舗:物件詳細
交通 所在地 |
駅徒歩 |
賃料 管理費等 |
敷金/保証金 礼金 |
使用部分面積 坪数/坪単価 |
物件種目 築年月 |
JR鹿児島本線/松橋 [バス利用可] バス 11分 南田バス停 停歩2分
熊本県宇城市松橋町曲野
|
31分
|
8.58万円
3,013円
|
3ヶ月 / なし
なし
|
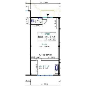
48.50m²
14.67坪/0.5849万円
|
貸店舗・事務所
1989年3月(築36年8ヶ月)
|
間取図
|
外観
松久ビル テナント
|
その他の画像
|
交通 | JR鹿児島本線 松橋駅 徒歩31分 [バス利用可] バス 11分 南田バス停 停歩2分 |
所在地 |
熊本県宇城市松橋町曲野
|
物件種目 |
貸店舗・事務所 |
賃料 |
8.58万円 |
管理費等 |
3,013円 |
敷金 / 保証金 |
3ヶ月 / なし |
礼金 |
なし |
敷引 |
- |
坪単価 |
0.5849万円 |
保証金償却 |
- |
権利金 |
- |
造作譲渡 |
造作譲渡無償 |
その他一時金 |
- |
維持費等 |
水道代:2,200円/月、下水道代:1,100円/月 |
保険等 |
要 店舗総合 |
使用部分面積 |
48.50m² |
坪数 |
14.67坪 |
築年月 |
1989年3月(築36年8ヶ月)
|
階建 / 階 |
地上3階地下1階建 / 1階 |
駐車場 |
有 無料 駐車場は店舗正面道路沿いに2台込(追加3,850円/台・税込) |
バイク置き場 |
有 |
駐輪場 |
有 |
土地面積 |
- |
接道状況 |
-
|
用途地域 |
- |
間取り |
- |
建物構造 |
鉄骨造 |
アピールポイント |
仲介料不要で初期費用が1ヶ月分お得です。更新料・礼金も不要。県道沿い1階路面店。松橋インター1.5km、国道3号線360m。交通アクセスも良好です。駐車場は店舗正面道路沿いに2台込(追加3,850円/台・税込) |
建物名・部屋番号 |
松久ビル 1-C |
リフォーム履歴 |
■外装:2025年3月 外壁、屋根 屋根鋼板全面葺き替え。外壁塗装全面改修。 ■共用部の大規模修繕工事:2025年3月 共用廊下床防水改修。 ※実施年月は最も古い履歴を表示 |
リノベーション履歴 |
- |
特記事項 |
居抜き、24時間利用可、土曜日利用可、土日・祝日利用可、飲食店可、駐車場2台分 |
備考 |
賃貸保証等:加入要(契約時保証料:賃料等総額の100% 年払更新料:賃料等総額の10%(2年目以降、年1回)1部上場ほか会社規模により免除可。)
管理形態/管理員の勤務形態:-/-
主要採光面:南向き
更新料・礼金不要。県道沿い1階路面店。松橋インター1.5km、国道3号線360m。交通アクセスも良好です。駐車場は店舗正面道路沿いに2台込(追加3,850円/台・税込)
|
エネルギー消費性能 |
- |
断熱性能 |
- |
目安光熱費 |
- |
バス・トイレ |
専有部分にトイレあり |
キッチン |
- |
設備・サービス |
看板取付スペースあり、天井高2.5m、建物間口4.7m、空調機あり、換気口あり、排水設備あり 、水道メーター口径25mm、電気容量(電灯)50KVA
プロパンガス、火災警報器(報知機) |
その他 |
- |
契約期間 |
2年 |
条件等 |
- |
引渡可能時期 |
即時 |
現況 |
空 |
仲介手数料 |
不要 |
適格請求書発行 |
可
|
更新料 |
なし |
物件番号 |
6987459278 |
情報公開日 |
2025年8月29日 |
次回更新予定日 |
2025年10月20日 |
ケータイ用バーコード |
- スマートフォンでこの物件を見る
- スマートフォンからもこの物件をご覧になれます。
|
※「-」と表示されている項目については、情報提供会社にご確認ください。
周辺施設 |
セブンイレブン宇城松橋南田店 |
距離 |
50m |
写真を見る |
周辺施設 |
社会医療法人黎明会宇城総合病院 |
距離 |
204m |
写真を見る |
周辺施設 |
道の駅 宇城彩館 |
距離 |
200m |
写真を見る |
周辺施設 |
シェルミヤムラ石油 |
距離 |
50m |
写真を見る |
ここから簡単にお問い合わせをすることができます。
(SSLでの暗号化での送信を希望されるお客さまは
こちら
よりお問い合わせください)
お問い合わせを行う前に
「個人情報の取り扱いについて」を必ずお読みください。
「個人情報の取り扱いについて」に同意いただいた場合は「上記にご同意の上 確認画面へ進む」のボタンをクリックしてください。
個人情報の取り扱いについて
皆さまが送付された個人情報はアットホーム(株)のサーバを経由し、お問い合わせ先の不動産会社にメールまたはFAXにて転送されるためアットホーム(株)にも保管されます。アットホーム(株)で保管された個人情報の取り扱いについては、【こちら】をご覧ください。
また、本画面でご記入いただいた個人情報は、お問い合わせ先の不動産会社でも保管します。 お問い合わせ先の不動産会社が保管する個人情報の取り扱いについては、不動産会社に直接お問い合わせください。
熊本県知事免許(12)第2060号 |
---|
- 交通:
- JR鹿児島本線/松橋駅
- 熊本県宇城市松橋町曲野2163-1 松久ビル2-A
- TEL:
- 0964-33-3088
- 所属団体:
- (公社)熊本県宅地建物取引業協会会員(一社)九州不動産公正取引協議会加盟
取引態様:貸主  - 80508180
|
- スマートフォンで
この不動産会社を見る

|
- 提携サイト等より掲載されている物件情報につきましては、不動産会社詳細情報にリンクされていないものがあります。
- 物件に関するお問合せは、物件詳細ページの「情報提供会社」に表示されている不動産会社へ直接お願いいたします。
- 間取図は、現況を優先させていただきます。
- 映像は物件の一部を撮影したものです。物件の契約にあたっての最終判断はご自身の判断に基づいて行ってください。
- 仲介手数料について

アットホームは物件情報の適正化に努めております。
内容に誤りがある場合にはこちらへご連絡ください。