千葉県柏市新柏3丁目(新柏駅)の貸店舗:物件詳細

  • 物件詳細
  • 情報の見方
  • 印刷用画面
交通
所在地
駅徒歩 賃料
管理費等
敷金/保証金
礼金
使用部分面積
坪数/坪単価
物件種目
築年月

東武野田線/新柏 新着

千葉県柏市新柏3丁目

9分

9.9万円

2ヶ月 / なし

なし

36.03m²

10.89坪/0.9084万円

貸店舗・事務所

2002年11月(築23年)

おすすめコメント

新柏さくら通り沿いの店舗事務所です。新柏駅からつながる主要生活道路沿いの物件で、視認性のよい場所にある物件です。

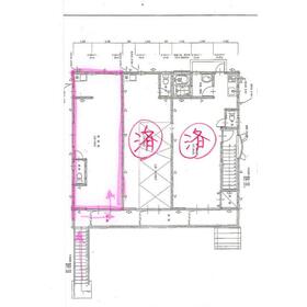
間取図

間取図

その他の画像
    • お問い合わせ
    交通

    東武野田線 新柏駅 徒歩9分

    その他の交通

    東武野田線 増尾駅 徒歩22分

    JR千代田・常磐緩行線 南柏駅 徒歩26分

    所在地 千葉県柏市新柏3丁目
    物件種目 貸店舗・事務所
    賃料 9.9万円 管理費等
    敷金 / 保証金 2ヶ月 / なし 礼金 なし
    敷引 坪単価 0.9084万円
    保証金償却 権利金
    造作譲渡 その他一時金
    維持費等 保険等
    使用部分面積 36.03m² 坪数 10.89坪
    築年月 2002年11月(築23年) 階建 / 階 2階建 / 2階
    駐車場 有 6,600円/月(空き1台) バイク置き場
    駐輪場 土地面積
    接道状況 用途地域
    間取り 建物構造 木造
    アピールポイント 新柏さくら通り沿いの店舗事務所です。
    新柏駅からつながる主要生活道路沿いの物件で、視認性のよい場所に
    ある物件です。
    建物名・部屋番号 ルミエール2 201
    リフォーム履歴
    リノベーション履歴
    特記事項 飲食店不可、保証人不要
    備考
    賃貸保証等:加入要(指定保証会社あり)
    管理形態/管理員の勤務形態:-/-
    新柏さくら通り沿いの店舗事務所です。新柏駅からつながる主要生活道路沿いの物件で、視認性のよい場所にある物件です。
    エネルギー消費性能
    断熱性能
    目安光熱費
    バス・トイレ 専有部分にトイレあり
    キッチン
    設備・サービス
    その他
    契約期間 3年 条件等
    引渡可能時期 即時 現況
    仲介手数料 1.1ヶ月    
    更新料 新賃料 1ヶ月 物件番号 6988087138
    情報公開日 2025年10月21日 次回更新予定日 2025年11月4日
    ケータイ用バーコード

    QRコード

    スマートフォンでこの物件を見る
    スマートフォンからもこの物件をご覧になれます。
    ※「-」と表示されている項目については、情報提供会社にご確認ください。

    クイックお問い合わせ

    ここから簡単にお問い合わせをすることができます。
    (SSLでの暗号化での送信を希望されるお客さまは こちら よりお問い合わせください)

    お問い合わせ内容(必須)
    物件のお問い合わせ理由(必須)
    お名前・ご担当者様名(必須) 姓  名 
    メールアドレス(必須)
    ※携帯電話のメールアドレスをご入力される方はこちらをご確認ください
    電話番号(必須)
    - -
    備考欄 希望条件、物件案内希望日、質問などがございましたらご記入ください。
    お問い合わせを行う前に「個人情報の取り扱いについて」を必ずお読みください。
    「個人情報の取り扱いについて」に同意いただいた場合は「上記にご同意の上 確認画面へ進む」のボタンをクリックしてください。

    個人情報の取り扱いについて

    皆さまが送付された個人情報はアットホーム(株)のサーバを経由し、お問い合わせ先の不動産会社にメールまたはFAXにて転送されるためアットホーム(株)にも保管されます。アットホーム(株)で保管された個人情報の取り扱いについては、【こちら】をご覧ください。
    また、本画面でご記入いただいた個人情報は、お問い合わせ先の不動産会社でも保管します。 お問い合わせ先の不動産会社が保管する個人情報の取り扱いについては、不動産会社に直接お問い合わせください。

    情報提供会社

    (株)ロコプランナー 我孫子支店

    千葉県知事免許(2)第17068号

    交通:
    JR常磐線/我孫子駅 徒歩2分
    千葉県我孫子市我孫子1丁目9-20 石山ビル2階
    TEL:
    04-7170-1977
    FAX:
    04-7170-1966
    所属団体:
    (公社)全日本不動産協会会員
    (公社)首都圏不動産公正取引協議会加盟

    取引態様:仲介

    • 00270596
    • お問い合わせ
    • 提携サイト等より掲載されている物件情報につきましては、不動産会社詳細情報にリンクされていないものがあります。
    • 物件に関するお問合せは、物件詳細ページの「情報提供会社」に表示されている不動産会社へ直接お願いいたします。
    • 間取図は、現況を優先させていただきます。
    • 映像は物件の一部を撮影したものです。物件の契約にあたっての最終判断はご自身の判断に基づいて行ってください。
    • 仲介手数料について仲介手数料

    アットホームは物件情報の適正化に努めております。 内容に誤りがある場合にはこちらへご連絡ください。


    アットホームのページへ
    物件画像: