京都府八幡市男山石城(樟葉駅)の貸店舗:物件詳細

  • 物件詳細
  • 情報の見方
  • 印刷用画面
交通
所在地
駅徒歩 賃料
管理費等
敷金/保証金
礼金
使用部分面積
坪数/坪単価
物件種目
築年月

京阪本線/樟葉 新着

京都府八幡市男山石城

27分

17.6万円

11,000円

3ヶ月 / なし

3ヶ月

177.30m²

53.63坪/0.3282万円

貸店舗・事務所

1993年10月(築32年1ヶ月)

おすすめコメント

2階の1フロアになります。業種等相談ください

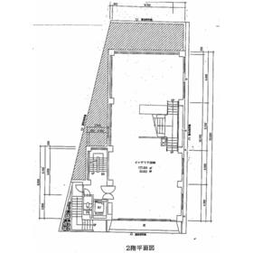
間取図

間取図

  • お問い合わせ
交通

京阪本線 樟葉駅 徒歩27分

所在地 京都府八幡市男山石城
物件種目 貸店舗・事務所
賃料 17.6万円 管理費等 11,000円
敷金 / 保証金 3ヶ月 / なし 礼金 3ヶ月
敷引 坪単価 0.3282万円
保証金償却 権利金
造作譲渡 その他一時金
維持費等 保険等
使用部分面積 177.30m² 坪数 53.63坪
築年月 1993年10月(築32年1ヶ月) 階建 / 階 5階建 / 2階
駐車場 有 11,000円/月 バイク置き場
駐輪場 土地面積
接道状況 用途地域 2種中高
間取り 建物構造 鉄骨造
建物名・部屋番号 店舗・事務所・倉庫 2階
リフォーム履歴
リノベーション履歴
特記事項
備考
管理形態/管理員の勤務形態:-/-
業種要相談
現況渡し
駐車場要相談
エネルギー消費性能
断熱性能
目安光熱費
バス・トイレ 共用部分にトイレあり
キッチン
設備・サービス 看板取付スペースあり
その他 エレベーター
契約期間 2年 条件等
引渡可能時期 即時 現況
更新料 物件番号 6988140872
情報公開日 2025年10月25日 次回更新予定日 2025年11月8日
ケータイ用バーコード

QRコード

スマートフォンでこの物件を見る
スマートフォンからもこの物件をご覧になれます。
※「-」と表示されている項目については、情報提供会社にご確認ください。

この物件の周辺情報

周辺施設 油竹堂書店
距離 468m
周辺施設 ローソン八幡男山石城店
距離 341m
周辺施設 男山保育園
距離 130m
周辺施設 ほっかほっか亭男山店
距離 266m
周辺施設 八幡男山郵便局
距離 229m
周辺施設 スーパーストアナカガワ男山店
距離 224m
周辺施設 八幡市立男山第二中学校
距離 320m
周辺施設 京都銀行男山支店
距離 259m

クイックお問い合わせ

ここから簡単にお問い合わせをすることができます。
(SSLでの暗号化での送信を希望されるお客さまは こちら よりお問い合わせください)

お問い合わせ内容(必須)
物件のお問い合わせ理由(必須)
お名前・ご担当者様名(必須) 姓  名 
メールアドレス(必須)
※携帯電話のメールアドレスをご入力される方はこちらをご確認ください
電話番号(必須)
- -
備考欄 希望条件、物件案内希望日、質問などがございましたらご記入ください。
お問い合わせを行う前に「個人情報の取り扱いについて」を必ずお読みください。
「個人情報の取り扱いについて」に同意いただいた場合は「上記にご同意の上 確認画面へ進む」のボタンをクリックしてください。

個人情報の取り扱いについて

皆さまが送付された個人情報はアットホーム(株)のサーバを経由し、お問い合わせ先の不動産会社にメールまたはFAXにて転送されるためアットホーム(株)にも保管されます。アットホーム(株)で保管された個人情報の取り扱いについては、【こちら】をご覧ください。
また、本画面でご記入いただいた個人情報は、お問い合わせ先の不動産会社でも保管します。 お問い合わせ先の不動産会社が保管する個人情報の取り扱いについては、不動産会社に直接お問い合わせください。

情報提供会社

情報提供会社

(有)ホウキフジ

大阪府知事免許(5)第49397号

交通:
京阪本線/樟葉駅 徒歩5分
大阪府枚方市町楠葉1丁目5-3 速水ビル2階
TEL:
072-809-6000
FAX:
072-809-6200
所属団体:
(公社)全日本不動産協会会員
(公社)近畿地区不動産公正取引協議会加盟

取引態様:仲介

  • 会社情報
  • 50025226
スマートフォンで
この不動産会社を見る
QRコード
  • お問い合わせ
  • 提携サイト等より掲載されている物件情報につきましては、不動産会社詳細情報にリンクされていないものがあります。
  • 物件に関するお問合せは、物件詳細ページの「情報提供会社」に表示されている不動産会社へ直接お願いいたします。
  • 間取図は、現況を優先させていただきます。
  • 映像は物件の一部を撮影したものです。物件の契約にあたっての最終判断はご自身の判断に基づいて行ってください。
  • 仲介手数料について仲介手数料

アットホームは物件情報の適正化に努めております。 内容に誤りがある場合にはこちらへご連絡ください。


アットホームのページへ
物件画像: