大阪府大阪市西成区岸里1丁目(天下茶屋駅)の貸店舗:物件詳細
交通 所在地 |
駅徒歩 |
賃料 管理費等 |
敷金/保証金 礼金 |
使用部分面積 坪数/坪単価 |
物件種目 築年月 |
|
南海本線/天下茶屋
大阪府大阪市西成区岸里1丁目
|
5分
|
22万円
なし
|
なし / なし
2ヶ月
|
46.78m²
14.15坪/1.5547万円
|
貸店舗
2019年12月(築6年3ヶ月)
|
|
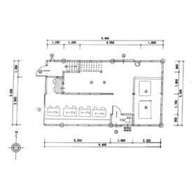
間取図
1階店舗部分面積46.78㎡ テーブル、椅子はそのまま使用可
|
外観
前面道路を含む現地写真
|
その他の画像
|
| 交通 | 南海本線 天下茶屋駅 徒歩5分 |
|---|
| その他の交通 | 地下鉄堺筋線 天下茶屋駅 徒歩5分 地下鉄四つ橋線 岸里駅 徒歩4分 |
| 所在地 |
大阪府大阪市西成区岸里1丁目
|
| 物件種目 |
貸店舗 |
| 賃料 |
22万円 |
管理費等 |
なし |
| 敷金 / 保証金 |
なし / なし |
礼金 |
2ヶ月 |
| 敷引 |
- |
坪単価 |
1.5547万円 |
| 保証金償却 |
- |
権利金 |
- |
| 造作譲渡 |
- |
その他一時金 |
- |
| 維持費等 |
- |
保険等 |
要 AIG損害保険㈱ |
| 使用部分面積 |
46.78m² |
坪数 |
14.15坪 |
| 築年月 |
2019年12月(築6年3ヶ月)
|
階建 / 階 |
2階建 / 1階 |
| 駐車場 |
- |
バイク置き場 |
- |
| 駐輪場 |
- |
土地面積 |
92.23m²(公簿) |
| 接道状況 |
西 27.2m 公道 接面6.9m
|
用途地域 |
商業地域 |
| 間取り |
1K |
建物構造 |
木造 |
| 建物名・部屋番号 |
|
| リフォーム履歴 |
- |
| リノベーション履歴 |
- |
| 特記事項 |
土日・祝日利用可、飲食店可、国道沿いに面する |
| 備考 |
賃貸保証等:加入要(保証会社各社ございますので、契約時にご確認ください。例)全保連(株)1年目1か月分(220,000円)、2年目から10%(22,000円))
管理形態/管理員の勤務形態:-/-
主要採光面:西向き
|
| エネルギー消費性能 |
- |
| 断熱性能 |
- |
| 目安光熱費 |
- |
| バス・トイレ |
高温差湯式、トイレ |
| キッチン |
- |
| 設備・サービス |
看板取付スペースあり、シャッター付き、天井高2.8m、建物間口5.3m、空調機あり、換気口あり、グリストラップあり、厨房防水あり、排水設備あり 、水道メーター口径25mm
エアコン2台以上、給湯、都市ガス |
| その他 |
- |
| 契約期間 |
2年 |
条件等 |
- |
| 引渡可能時期 |
相談 |
現況 |
空 |
| 更新料 |
なし |
物件番号 |
6989048566 |
| 情報公開日 |
2026年2月13日 |
次回更新予定日 |
2026年3月1日 |
| ケータイ用バーコード |
- スマートフォンでこの物件を見る
- スマートフォンからもこの物件をご覧になれます。
|
※「-」と表示されている項目については、情報提供会社にご確認ください。
| 周辺施設 |
業務スーパー天下茶屋駅前店 |
| 距離 |
131m |
写真を見る |
| 周辺施設 |
カナートモール天下茶屋 |
| 距離 |
207m |
写真を見る |
| 周辺施設 |
私立大谷高校 |
| 距離 |
1304m |
写真を見る |
| 周辺施設 |
私立大阪キリスト教短期大学 |
| 距離 |
1554m |
写真を見る |
| 周辺施設 |
大阪公立大学阿倍野キャンパス |
| 距離 |
2216m |
写真を見る |
| 周辺施設 |
医療法人嘉健会思温病院 |
| 距離 |
632m |
写真を見る |
ここから簡単にお問い合わせをすることができます。
(SSLでの暗号化での送信を希望されるお客さまは
こちら
よりお問い合わせください)
お問い合わせを行う前に
「個人情報の取り扱いについて」を必ずお読みください。
「個人情報の取り扱いについて」に同意いただいた場合は「上記にご同意の上 確認画面へ進む」のボタンをクリックしてください。
個人情報の取り扱いについて
皆さまが送付された個人情報はアットホーム(株)のサーバを経由し、お問い合わせ先の不動産会社にメールまたはFAXにて転送されるためアットホーム(株)にも保管されます。アットホーム(株)で保管された個人情報の取り扱いについては、【こちら】をご覧ください。
また、本画面でご記入いただいた個人情報は、お問い合わせ先の不動産会社でも保管します。 お問い合わせ先の不動産会社が保管する個人情報の取り扱いについては、不動産会社に直接お問い合わせください。
大阪府知事免許(6)第45770号 |
|---|
- 交通:
- JR関西本線/八尾駅 徒歩6分 【バス】 近鉄バス陽光園 停歩1分
- 大阪府八尾市安中町6丁目2-20 栄マンション
- TEL:
- 072-999-1977
- FAX:
- 072-993-7686
- 所属団体:
- (公社)全日本不動産協会会員(公社)近畿地区不動産公正取引協議会加盟
取引態様:仲介  - 50108620
|
- スマートフォンで
この不動産会社を見る

|
- 提携サイト等より掲載されている物件情報につきましては、不動産会社詳細情報にリンクされていないものがあります。
- 物件に関するお問合せは、物件詳細ページの「情報提供会社」に表示されている不動産会社へ直接お願いいたします。
- 間取図は、現況を優先させていただきます。
- 映像は物件の一部を撮影したものです。物件の契約にあたっての最終判断はご自身の判断に基づいて行ってください。
- 仲介手数料について

アットホームは物件情報の適正化に努めております。
内容に誤りがある場合にはこちらへご連絡ください。