東京都豊島区池袋2丁目(池袋駅)の貸店舗:物件詳細
交通 所在地 |
駅徒歩 |
賃料 管理費等 |
敷金/保証金 礼金 |
使用部分面積 坪数/坪単価 |
物件種目 築年月 |
|
JR山手線/池袋
東京都豊島区池袋2丁目
|
6分
|
25.3万円
11,000円
|
3ヶ月 / なし
なし
|
56.16m²
16.98坪/1.4893万円
|
貸店舗
1987年6月(築38年10ヶ月)
|
|
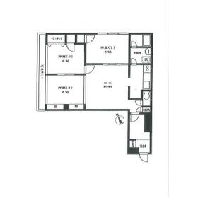
間取図
|
外観
|
その他の画像
|
| 交通 | JR山手線 池袋駅 徒歩6分 |
|---|
| その他の交通 | 東武東上線 池袋駅 徒歩6分 東京メトロ丸ノ内線 池袋駅 徒歩6分 |
| 所在地 |
東京都豊島区池袋2丁目
|
| 物件種目 |
貸店舗 |
| 賃料 |
25.3万円 |
管理費等 |
11,000円 |
| 敷金 / 保証金 |
3ヶ月 / なし |
礼金 |
なし |
| 敷引 |
- |
坪単価 |
1.4893万円 |
| 保証金償却 |
- |
権利金 |
- |
| 造作譲渡 |
- |
その他一時金 |
- |
| 維持費等 |
- |
保険等 |
- |
| 使用部分面積 |
56.16m² |
坪数 |
16.98坪 |
| 築年月 |
1987年6月(築38年10ヶ月)
|
階建 / 階 |
地上5階地下1階建 / 4階 |
| 駐車場 |
- |
バイク置き場 |
- |
| 駐輪場 |
- |
土地面積 |
- |
| 接道状況 |
-
|
用途地域 |
- |
| 間取り |
1DK |
建物構造 |
RC |
| アピールポイント |
・【美容サロン・インドア系店舗に強い】オンザルーム不動産です!
豊島区・新宿区エリアの店舗物件を多数取り扱っております。
サロン・マッサージ・パーソナルジム・インドアゴルフ、その他の出店もご相談ください(^^)!
・店舗内装のご相談も可能です!
自社工務店があるため、物件探しからリフォーム工事までまとめてお安くサポートいたします。
・初期費用のクレジット決済可能です!
電気・ガス・ネット回線などライフラインの手続きもまとめてサポートいたします。
・オンライン内見・オンライン相談可能です!
ご来店が難しい方でもLINE・メールでスムーズにご案内いたします。
TEL:03-6823-4606 |
| 建物名・部屋番号 |
COSMY-Ⅱ(コスミーツー) 401 |
| リフォーム履歴 |
- |
| リノベーション履歴 |
- |
| 特記事項 |
- |
| 備考 |
管理形態/管理員の勤務形態:-/-
民泊不可
|
| エネルギー消費性能 |
- |
| 断熱性能 |
- |
| 目安光熱費 |
- |
| バス・トイレ |
バス・トイレ別、シャワー |
| キッチン |
- |
| 設備・サービス |
エアコン2台以上、収納スペース、オートロック、防犯カメラ、都市ガス、エアコン、火災警報器(報知機)、インターネット対応、光ファイバー、CATVインターネット、ケーブルTV |
| その他 |
エレベーター |
| 契約期間 |
2年1ヶ月 |
条件等 |
- |
| 引渡可能時期 |
即時 |
現況 |
空 |
| 更新料 |
- |
物件番号 |
6989731196 |
| 情報公開日 |
2026年3月3日 |
次回更新予定日 |
2026年3月19日 |
| ケータイ用バーコード |
- スマートフォンでこの物件を見る
- スマートフォンからもこの物件をご覧になれます。
|
※「-」と表示されている項目については、情報提供会社にご確認ください。
| 周辺施設 |
業務用スーパーSHIODAYA池袋西口店 |
| 距離 |
96m |
| 周辺施設 |
成城石井Echika池袋店 |
| 距離 |
220m |
| 周辺施設 |
タビオEchika池袋店 |
| 距離 |
297m |
| 周辺施設 |
セブンイレブン池袋2丁目店 |
| 距離 |
101m |
ここから簡単にお問い合わせをすることができます。
(SSLでの暗号化での送信を希望されるお客さまは
こちら
よりお問い合わせください)
お問い合わせを行う前に
「個人情報の取り扱いについて」を必ずお読みください。
「個人情報の取り扱いについて」に同意いただいた場合は「上記にご同意の上 確認画面へ進む」のボタンをクリックしてください。
個人情報の取り扱いについて
皆さまが送付された個人情報はアットホーム(株)のサーバを経由し、お問い合わせ先の不動産会社にメールまたはFAXにて転送されるためアットホーム(株)にも保管されます。アットホーム(株)で保管された個人情報の取り扱いについては、【こちら】をご覧ください。
また、本画面でご記入いただいた個人情報は、お問い合わせ先の不動産会社でも保管します。 お問い合わせ先の不動産会社が保管する個人情報の取り扱いについては、不動産会社に直接お問い合わせください。
東京都知事免許(1)第110526号 |
|---|
- 交通:
- JR山手線/池袋駅
- 東京都豊島区東池袋2丁目63番地1 東池袋パレス1108号室
- TEL:
- 03-6823-4606
- 所属団体:
- (公社)全日本不動産協会会員(公社)首都圏不動産公正取引協議会加盟
取引態様:仲介  - 00277647
|
- スマートフォンで
この不動産会社を見る

|
- 提携サイト等より掲載されている物件情報につきましては、不動産会社詳細情報にリンクされていないものがあります。
- 物件に関するお問合せは、物件詳細ページの「情報提供会社」に表示されている不動産会社へ直接お願いいたします。
- 間取図は、現況を優先させていただきます。
- 映像は物件の一部を撮影したものです。物件の契約にあたっての最終判断はご自身の判断に基づいて行ってください。
- 仲介手数料について

アットホームは物件情報の適正化に努めております。
内容に誤りがある場合にはこちらへご連絡ください。