京都府南丹市八木町八木野條(八木駅)の貸店舗:物件詳細
交通 所在地 |
駅徒歩 |
賃料 管理費等 |
敷金/保証金 礼金 |
使用部分面積 坪数/坪単価 |
物件種目 築年月 |
|
JR山陰本線/八木
京都府南丹市八木町八木野條
|
1分
|
8.8万円
-
|
1ヶ月 / なし
2ヶ月
|
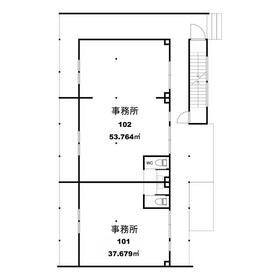
37.60m²
11.37坪/0.7737万円
|
貸店舗
2025年3月(築1年2ヶ月・未入居)
|
|
間取図
|
外観
|
その他の画像
|
| 交通 | JR山陰本線 八木駅 徒歩1分 |
| 所在地 |
京都府南丹市八木町八木野條
|
| 物件種目 |
貸店舗 |
| 賃料 |
8.8万円 |
管理費等 |
- |
| 敷金 / 保証金 |
1ヶ月 / なし |
礼金 |
2ヶ月 |
| 敷引 |
- |
坪単価 |
0.7737万円 |
| 保証金償却 |
- |
権利金 |
- |
| 造作譲渡 |
- |
その他一時金 |
- |
| 維持費等 |
- |
保険等 |
要 2年 23,000円 |
| 使用部分面積 |
37.60m² |
坪数 |
11.37坪 |
| 築年月 |
2025年3月(築1年2ヶ月・未入居)
|
階建 / 階 |
2階建 / 1階 |
| 駐車場 |
- |
バイク置き場 |
- |
| 駐輪場 |
- |
土地面積 |
- |
| 接道状況 |
-
|
用途地域 |
- |
| 間取り |
- |
建物構造 |
木造 |
| アピールポイント |
すべての物件、現地待ち合わせ案内可能です!お気軽にお問合せ下さいませ。06-6920-5188 |
| 建物名・部屋番号 |
SATOⅠ 101 |
| リフォーム履歴 |
- |
| リノベーション履歴 |
- |
| 特記事項 |
スケルトン、24時間利用可、土曜日利用可、土日・祝日利用可、IT重説対応物件 |
| 備考 |
賃貸保証等:加入要(USENトラスト 初回保証料100%)
管理形態/管理員の勤務形態:-/-
IT重説対応物件
ラインリンクでは、人気のエリアの物件情報を数多く扱っております。 弊社はオーナー様の大切な財産である不動産をお預け頂き、管理、仲介賃貸、仲介売買を営む総合不動産会社です。当社は全員が宅地建物取引士を取得しており、経験も豊富です。不動産のプロとして幅広い視野でお客様にご提案させて頂きます。 お客様1人1人にご満足いただけるように最良のご提案をさせて頂きます。
|
| エネルギー消費性能 |
- |
| 断熱性能 |
- |
| 目安光熱費 |
- |
| バス・トイレ |
- |
| キッチン |
- |
| 設備・サービス |
- |
| その他 |
- |
| 契約期間 |
2年 |
条件等 |
- |
| 引渡可能時期 |
即時 |
現況 |
空 |
| 更新料 |
- |
物件番号 |
6990442621 |
| 情報公開日 |
2026年4月21日 |
次回更新予定日 |
2026年5月5日 |
| ケータイ用バーコード |
- スマートフォンでこの物件を見る
- スマートフォンからもこの物件をご覧になれます。
|
※「-」と表示されている項目については、情報提供会社にご確認ください。
| 周辺施設 |
スーパーマツモト八木店 |
| 距離 |
1169m |
| 周辺施設 |
ファミリーマート南丹八木町店 |
| 距離 |
863m |
| 周辺施設 |
京都中部総合医療センター |
| 距離 |
1201m |
ここから簡単にお問い合わせをすることができます。
(SSLでの暗号化での送信を希望されるお客さまは
こちら
よりお問い合わせください)
お問い合わせを行う前に
「個人情報の取り扱いについて」を必ずお読みください。
「個人情報の取り扱いについて」に同意いただいた場合は「上記にご同意の上 確認画面へ進む」のボタンをクリックしてください。
個人情報の取り扱いについて
皆さまが送付された個人情報はアットホーム(株)のサーバを経由し、お問い合わせ先の不動産会社にメールまたはFAXにて転送されるためアットホーム(株)にも保管されます。アットホーム(株)で保管された個人情報の取り扱いについては、【こちら】をご覧ください。
また、本画面でご記入いただいた個人情報は、お問い合わせ先の不動産会社でも保管します。 お問い合わせ先の不動産会社が保管する個人情報の取り扱いについては、不動産会社に直接お問い合わせください。
大阪府知事免許(1)第64828号 |
|---|
- 交通:
- 地下鉄谷町線/天満橋駅 徒歩1分
- 大阪府大阪市中央区大手前1丁目7-31 OMM1階ServiceOfficeW天満橋
- TEL:
- 06-6920-5188
- FAX:
- 06-6920-5189
- 所属団体:
- (公社)全日本不動産協会会員(公社)近畿地区不動産公正取引協議会加盟
取引態様:仲介  - 50109277
|
- スマートフォンで
この不動産会社を見る

|
- 提携サイト等より掲載されている物件情報につきましては、不動産会社詳細情報にリンクされていないものがあります。
- 物件に関するお問合せは、物件詳細ページの「情報提供会社」に表示されている不動産会社へ直接お願いいたします。
- 間取図は、現況を優先させていただきます。
- 映像は物件の一部を撮影したものです。物件の契約にあたっての最終判断はご自身の判断に基づいて行ってください。
- 仲介手数料について

アットホームは物件情報の適正化に努めております。
内容に誤りがある場合にはこちらへご連絡ください。