香川県高松市塩上町2丁目(瓦町駅)の貸事務所:物件詳細
交通 所在地 |
駅徒歩 |
賃料 管理費等 |
敷金/保証金 礼金 |
使用部分面積 坪数/坪単価 |
物件種目 築年月 |
|
高松琴平電鉄志度線/瓦町
香川県高松市塩上町2丁目
|
3分
|
8.8万円
6,000円
|
3ヶ月 / なし
なし
|
53.83m²
16.28坪/0.5405万円
|
貸事務所
1990年10月(築35年3ヶ月)
|
|
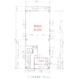
間取図
|
|
<
その他の画像
>
|
| 交通 | 高松琴平電鉄志度線 瓦町駅 徒歩3分 |
|---|
| その他の交通 | 高松琴平電鉄志度線 今橋駅 徒歩10分 高松琴平電鉄長尾線 花園駅 徒歩11分 |
| 所在地 |
香川県高松市塩上町2丁目
|
| 物件種目 |
貸事務所 |
| 賃料 |
8.8万円 |
管理費等 |
6,000円 |
| 敷金 / 保証金 |
3ヶ月 / なし |
礼金 |
なし |
| 敷引 |
- |
坪単価 |
0.5405万円 |
| 保証金償却 |
- |
権利金 |
- |
| 造作譲渡 |
- |
その他一時金 |
- |
| 維持費等 |
- |
保険等 |
要 |
| 使用部分面積 |
53.83m² |
坪数 |
16.28坪 |
| 築年月 |
1990年10月(築35年3ヶ月)
|
階建 / 階 |
4階建 / 2階 |
| 駐車場 |
有 無料 |
バイク置き場 |
有 無料 |
| 駐輪場 |
有 無料 |
土地面積 |
- |
| 接道状況 |
-
|
用途地域 |
商業地域 |
| 間取り |
- |
建物構造 |
鉄骨造 |
| 建物名・部屋番号 |
MIURA事務所 |
| リフォーム履歴 |
- |
| リノベーション履歴 |
- |
| 特記事項 |
飲食店不可、1フロア1テナント、駐車場2台分 |
| 備考 |
賃貸保証等:加入要(契約時賃料合計の100%、2年目より年額1万円の保証委託料が必要です。)
管理形態/管理員の勤務形態:-/-
主要採光面:東向き
駐車場は縦列2~3台分、賃料に含んでいます。
共益費に上下水道代を含んでいます。
瓦町駅東に位置し、外装も改装済できれいなビルです。1階の駐車場・駐輪場からEVが利用できます。
|
| エネルギー消費性能 |
- |
| 断熱性能 |
- |
| 目安光熱費 |
- |
| バス・トイレ |
専有部分にトイレあり |
| キッチン |
- |
| 設備・サービス |
給湯、エアコン |
| その他 |
エレベーター |
| 契約期間 |
2年 |
条件等 |
-
|
| 引渡可能時期 |
即時 |
現況 |
空 |
| 更新料 |
なし |
物件番号 |
6961115399 |
| 情報公開日 |
2025年4月16日 |
次回更新予定日 |
2025年12月18日 |
| ケータイ用バーコード |
- スマートフォンでこの物件を見る
- スマートフォンからもこの物件をご覧になれます。
|
※「-」と表示されている項目については、情報提供会社にご確認ください。
| 周辺施設 |
セブンイレブン高松瓦町駅東口店 |
| 距離 |
360m |
| 周辺施設 |
スターバックスコーヒー高松瓦町駅店 |
| 距離 |
374m |
ここから簡単にお問い合わせをすることができます。
(SSLでの暗号化での送信を希望されるお客さまは
こちら
よりお問い合わせください)
お問い合わせを行う前に
「個人情報の取り扱いについて」を必ずお読みください。
「個人情報の取り扱いについて」に同意いただいた場合は「上記にご同意の上 確認画面へ進む」のボタンをクリックしてください。
個人情報の取り扱いについて
皆さまが送付された個人情報はアットホーム(株)のサーバを経由し、お問い合わせ先の不動産会社にメールまたはFAXにて転送されるためアットホーム(株)にも保管されます。アットホーム(株)で保管された個人情報の取り扱いについては、【こちら】をご覧ください。
また、本画面でご記入いただいた個人情報は、お問い合わせ先の不動産会社でも保管します。 お問い合わせ先の不動産会社が保管する個人情報の取り扱いについては、不動産会社に直接お問い合わせください。
香川県知事免許(11)第2458号 |
|---|
- 交通:
- 高松琴平電鉄琴平線/円座駅 徒歩33分
- 香川県高松市成合町372
- TEL:
- 087-870-4141
- FAX:
- 087-870-4171
- 所属団体:
- (公社)香川県宅地建物取引業協会会員四国地区不動産公正取引協議会加盟
取引態様:仲介  - 50800622
|
- スマートフォンで
この不動産会社を見る

|
- 提携サイト等より掲載されている物件情報につきましては、不動産会社詳細情報にリンクされていないものがあります。
- 物件に関するお問合せは、物件詳細ページの「情報提供会社」に表示されている不動産会社へ直接お願いいたします。
- 間取図は、現況を優先させていただきます。
- 映像は物件の一部を撮影したものです。物件の契約にあたっての最終判断はご自身の判断に基づいて行ってください。
- 仲介手数料について

アットホームは物件情報の適正化に努めております。
内容に誤りがある場合にはこちらへご連絡ください。