岡山県岡山市北区下中野(大元駅)の貸事務所:物件詳細
交通 所在地 |
駅徒歩 |
賃料 管理費等 |
敷金/保証金 礼金 |
使用部分面積 坪数/坪単価 |
物件種目 築年月 |
|
宇野線/大元
岡山県岡山市北区下中野
|
7分
|
7.7万円
-
|
3ヶ月 / なし
1ヶ月
|
34.71m²
10.49坪/0.7334万円
|
貸事務所
1993年1月(築33年4ヶ月)
|
|
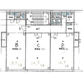
間取図
|
|
その他の画像
|
| 交通 | 宇野線 大元駅 徒歩7分 |
| 所在地 |
岡山県岡山市北区下中野
|
| 物件種目 |
貸事務所 |
| 賃料 |
7.7万円 |
管理費等 |
- |
| 敷金 / 保証金 |
3ヶ月 / なし |
礼金 |
1ヶ月 |
| 敷引 |
- |
坪単価 |
0.7334万円 |
| 保証金償却 |
- |
権利金 |
- |
| 造作譲渡 |
- |
その他一時金 |
- |
| 維持費等 |
- |
保険等 |
要 2年 |
| 使用部分面積 |
34.71m² |
坪数 |
10.49坪 |
| 築年月 |
1993年1月(築33年4ヶ月)
|
階建 / 階 |
3階建 / 2階 |
| 駐車場 |
有 無料(空き2台) 縦列駐車で空き有(要確認) |
バイク置き場 |
- |
| 駐輪場 |
- |
土地面積 |
- |
| 接道状況 |
-
|
用途地域 |
- |
| 間取り |
- |
建物構造 |
ALC |
| アピールポイント |
★駅近の2階に10.50坪で、駐車場は縦列駐車で空き有(要確認)♪
その他一時金:鍵交換代 16,500円になります♪
大元駅周辺で事務所をお探しの方に、オススメ物件になります♪
お気軽に、お問い合わせください♪
お待ちしております!★ |
| 建物名・部屋番号 |
|
| リフォーム履歴 |
- |
| リノベーション履歴 |
- |
| 特記事項 |
駐車場2台分、角部屋 |
| 備考 |
賃貸保証等:加入要(確認して下さい!)
管理形態/管理員の勤務形態:-/-
|
| エネルギー消費性能 |
- |
| 断熱性能 |
- |
| 目安光熱費 |
- |
| バス・トイレ |
共用部分にトイレあり |
| キッチン |
- |
| 設備・サービス |
冷蔵庫、プロパンガス、ビルトインエアコン |
| その他 |
- |
| 契約期間 |
2年 |
条件等 |
-
|
| 引渡可能時期 |
即時 |
現況 |
空 |
| 更新料 |
- |
物件番号 |
6988314660 |
| 情報公開日 |
2026年4月22日 |
次回更新予定日 |
2026年5月6日 |
| ケータイ用バーコード |
- スマートフォンでこの物件を見る
- スマートフォンからもこの物件をご覧になれます。
|
※「-」と表示されている項目については、情報提供会社にご確認ください。
| 周辺施設 |
ファミリーマート東古松中央店 |
| 距離 |
511m |
| 周辺施設 |
ステーキのあさくま岡山大元店 |
| 距離 |
650m |
| 周辺施設 |
私立吉備国際大学岡山キャンパス |
| 距離 |
915m |
ここから簡単にお問い合わせをすることができます。
(SSLでの暗号化での送信を希望されるお客さまは
こちら
よりお問い合わせください)
お問い合わせを行う前に
「個人情報の取り扱いについて」を必ずお読みください。
「個人情報の取り扱いについて」に同意いただいた場合は「上記にご同意の上 確認画面へ進む」のボタンをクリックしてください。
個人情報の取り扱いについて
皆さまが送付された個人情報はアットホーム(株)のサーバを経由し、お問い合わせ先の不動産会社にメールまたはFAXにて転送されるためアットホーム(株)にも保管されます。アットホーム(株)で保管された個人情報の取り扱いについては、【こちら】をご覧ください。
また、本画面でご記入いただいた個人情報は、お問い合わせ先の不動産会社でも保管します。 お問い合わせ先の不動産会社が保管する個人情報の取り扱いについては、不動産会社に直接お問い合わせください。
国土交通大臣免許(6)第5598号 |
|---|
- 交通:
- JR山陽本線/岡山駅 徒歩5分
- 岡山県岡山市北区本町3-9
- TEL:
- 086-227-6680
- FAX:
- 086-227-6662
- 所属団体:
- (公社)全日本不動産協会会員不動産公正取引協議会加盟
取引態様:仲介  - 50022087
|
- スマートフォンで
この不動産会社を見る

|
- 提携サイト等より掲載されている物件情報につきましては、不動産会社詳細情報にリンクされていないものがあります。
- 物件に関するお問合せは、物件詳細ページの「情報提供会社」に表示されている不動産会社へ直接お願いいたします。
- 間取図は、現況を優先させていただきます。
- 映像は物件の一部を撮影したものです。物件の契約にあたっての最終判断はご自身の判断に基づいて行ってください。
- 仲介手数料について

アットホームは物件情報の適正化に努めております。
内容に誤りがある場合にはこちらへご連絡ください。