大阪府堺市堺区宿院町東4丁(堺東駅)の貸その他:物件詳細
交通 所在地 |
駅徒歩 |
賃料 管理費等 |
敷金/保証金 礼金 |
使用部分面積 坪数/坪単価 |
物件種目 築年月 |
|
南海高野線/堺東
大阪府堺市堺区宿院町東4丁
|
15分
|
43.78万円
なし
|
なし / 4ヶ月
2ヶ月
|
115.93m²
35.06坪/1.2485万円
|
貸倉庫
2026年7月(新築)
|
|
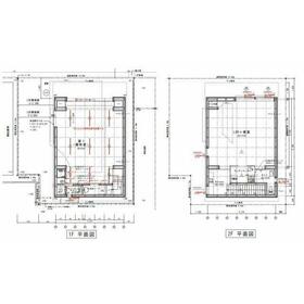
間取図
1・2階
|
その他
イメージ
|
<
その他の画像
>
|
| 交通 | 南海高野線 堺東駅 徒歩15分 |
|---|
| その他の交通 | 阪堺電気軌道阪堺線 宿院駅 徒歩6分 阪堺電気軌道阪堺線 寺地町駅 徒歩9分 |
| 所在地 |
大阪府堺市堺区宿院町東4丁
|
| 物件種目 |
貸倉庫 |
| 賃料 |
43.78万円 |
管理費等 |
なし |
| 敷金 / 保証金 |
なし / 4ヶ月 |
礼金 |
2ヶ月 |
| 敷引 |
- |
坪単価 |
1.2485万円 |
| 保証金償却 |
- |
権利金 |
- |
| 造作譲渡 |
- |
その他一時金 |
貸主指定家賃保証料:437,800円 |
| 保険等 |
- |
|
|
| 使用部分面積 |
115.93m² |
坪数 |
35.06坪 |
| 築年月 |
2026年7月(新築)
|
階建 / 階 |
2階建 / 1階~2階部分 |
| 駐車場 |
有 無料(空き2台) |
バイク置き場 |
- |
| 駐輪場 |
- |
土地面積 |
123.33m² |
| 接道状況 |
-
|
用途地域 |
商業地域 |
| 間取り |
- |
建物構造 |
木造 |
| 建物名・部屋番号 |
(仮称)宿院倉庫事務所(堺市堺区宿院町東4丁26-4) 2階建 |
| リフォーム履歴 |
- |
| リノベーション履歴 |
- |
| 特記事項 |
- |
| 備考 |
賃貸保証等:加入要(保証会社ジェイリース)
管理形態/管理員の勤務形態:-/-
☆新築 貸倉庫事務所 2階建(木造耐火構造)
建物延べ約35坪(1F・2F約17.53坪)敷地約37坪◇駐車スペース2台分有り(車種による) ■阪神高速「堺インター 約200m」・堺市役所近く□倉庫天井高さ約4.1m
定期借家契約10年(再契約相談可)、1F 57.96㎡ 2F 57.96㎡、坪単価12,487円、駐車スペース有り(2台可 車種による)、正面電動シャッター(高さ約3.6m 幅約4.5m)、1F・2Fトイレ有り、シャワールーム有り、天井高:1F約4.1m 2F約3.1m、貸主インボイス非課税、早期解約違約金(スライド式)、倉庫エアコン設置可能(借主様負担)
|
| エネルギー消費性能 |
- |
| 断熱性能 |
- |
| 目安光熱費 |
- |
| バス・トイレ |
トイレ |
| キッチン |
- |
| 設備・サービス |
- |
| その他 |
- |
| 契約期間 |
10年 |
条件等 |
定期借家 |
| 引渡可能時期 |
2026年8月上旬予定 |
現況 |
未完成 |
| 仲介手数料 |
1ヶ月 |
|
|
| 更新料 |
- |
物件番号 |
1131741315 |
| 情報公開日 |
2026年4月22日 |
次回更新予定日 |
2026年5月12日 |
| ケータイ用バーコード |
- スマートフォンでこの物件を見る
- スマートフォンからもこの物件をご覧になれます。
|
※「-」と表示されている項目については、情報提供会社にご確認ください。
ここから簡単にお問い合わせをすることができます。
(SSLでの暗号化での送信を希望されるお客さまは
こちら
よりお問い合わせください)
お問い合わせを行う前に
「個人情報の取り扱いについて」を必ずお読みください。
「個人情報の取り扱いについて」に同意いただいた場合は「上記にご同意の上 確認画面へ進む」のボタンをクリックしてください。
個人情報の取り扱いについて
皆さまが送付された個人情報はアットホーム(株)のサーバを経由し、お問い合わせ先の不動産会社にメールまたはFAXにて転送されるためアットホーム(株)にも保管されます。アットホーム(株)で保管された個人情報の取り扱いについては、【こちら】をご覧ください。
また、本画面でご記入いただいた個人情報は、お問い合わせ先の不動産会社でも保管します。 お問い合わせ先の不動産会社が保管する個人情報の取り扱いについては、不動産会社に直接お問い合わせください。
国土交通大臣免許(1)第10705号 |
|---|
- 交通:
- 地下鉄谷町線/天満橋駅 徒歩8分
- 大阪府大阪市北区天満2丁目8-17 天満橋パークビル601号
- TEL:
- 06-6356-4555
- FAX:
- 06-6356-4666
- 所属団体:
- (公社)全日本不動産協会会員(公社)近畿地区不動産公正取引協議会加盟
取引態様:仲介  - 50101180
|
- スマートフォンで
この不動産会社を見る

|
- 提携サイト等より掲載されている物件情報につきましては、不動産会社詳細情報にリンクされていないものがあります。
- 物件に関するお問合せは、物件詳細ページの「情報提供会社」に表示されている不動産会社へ直接お願いいたします。
- 間取図は、現況を優先させていただきます。
- 映像は物件の一部を撮影したものです。物件の契約にあたっての最終判断はご自身の判断に基づいて行ってください。
- 仲介手数料について

アットホームは物件情報の適正化に努めております。
内容に誤りがある場合にはこちらへご連絡ください。