東京都江東区新砂2丁目(潮見駅)の貸その他:物件詳細
交通 所在地 |
駅徒歩 |
賃料 管理費等 |
敷金/保証金 礼金 |
使用部分面積 坪数/坪単価 |
物件種目 築年月 |
|
JR京葉線/潮見
東京都江東区新砂2丁目
|
11分
|
342.8656万円
-
|
6ヶ月 / なし
2ヶ月
|
1,472.00m²
445.27坪/0.7701万円
|
貸倉庫
1987年3月(築38年9ヶ月)
|
|
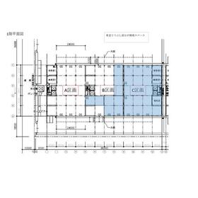
間取図
4階平面図
|
間取図
1階共有部分平面図
|
<
その他の画像
>
|
| 交通 | JR京葉線 潮見駅 徒歩11分 |
|---|
| その他の交通 | JR京葉線 新木場駅 徒歩20分 りんかい線 新木場駅 徒歩20分 |
| 所在地 |
東京都江東区新砂2丁目
|
| 物件種目 |
貸倉庫 |
| 賃料 |
342.8656万円 |
管理費等 |
- |
| 敷金 / 保証金 |
6ヶ月 / なし |
礼金 |
2ヶ月 |
| 敷引 |
- |
坪単価 |
0.7701万円 |
| 保証金償却 |
- |
権利金 |
- |
| 造作譲渡 |
- |
その他一時金 |
- |
| 保険等 |
要 |
|
|
| 使用部分面積 |
1,472.00m² |
坪数 |
445.27坪 |
| 築年月 |
1987年3月(築38年9ヶ月)
|
階建 / 階 |
5階建 / 4階 |
| 駐車場 |
空無 |
バイク置き場 |
- |
| 駐輪場 |
- |
土地面積 |
- |
| 接道状況 |
-
|
用途地域 |
- |
| 間取り |
- |
建物構造 |
RC |
| 建物名・部屋番号 |
4階 |
| リフォーム履歴 |
- |
| リノベーション履歴 |
- |
| 特記事項 |
土日・祝日利用可、大型トラック搬入可 |
| 備考 |
管理形態/管理員の勤務形態:-/-
・中途解約不可(契約年数相談)
・日中利用希望(深夜帯は要相談)
・利用時(搬入・荷捌き)は都度、貸主へ連絡必須
・1階荷捌きスペース、エレベーターは貸主と共同
・光熱費、清掃費、廃棄物処理費、消耗品の補充取替、火災保険料等は借主負担。
・天井高:4.8m・床荷重:1.5t・空調有り
|
| エネルギー消費性能 |
- |
| 断熱性能 |
- |
| 目安光熱費 |
- |
| バス・トイレ |
トイレ |
| キッチン |
- |
| 設備・サービス |
- |
| その他 |
荷積みスペース、エレベーター2基以上、人荷用エレベーター |
| 契約期間 |
5年 |
条件等 |
定期借家 |
| 引渡可能時期 |
即時 |
現況 |
空 |
| 仲介手数料 |
1ヶ月 |
|
|
| 更新料 |
なし |
物件番号 |
6980274671 |
| 情報公開日 |
2024年5月31日 |
次回更新予定日 |
2025年11月12日 |
| ケータイ用バーコード |
- スマートフォンでこの物件を見る
- スマートフォンからもこの物件をご覧になれます。
|
※「-」と表示されている項目については、情報提供会社にご確認ください。
ここから簡単にお問い合わせをすることができます。
(SSLでの暗号化での送信を希望されるお客さまは
こちら
よりお問い合わせください)
お問い合わせを行う前に
「個人情報の取り扱いについて」を必ずお読みください。
「個人情報の取り扱いについて」に同意いただいた場合は「上記にご同意の上 確認画面へ進む」のボタンをクリックしてください。
個人情報の取り扱いについて
皆さまが送付された個人情報はアットホーム(株)のサーバを経由し、お問い合わせ先の不動産会社にメールまたはFAXにて転送されるためアットホーム(株)にも保管されます。アットホーム(株)で保管された個人情報の取り扱いについては、【こちら】をご覧ください。
また、本画面でご記入いただいた個人情報は、お問い合わせ先の不動産会社でも保管します。 お問い合わせ先の不動産会社が保管する個人情報の取り扱いについては、不動産会社に直接お問い合わせください。
(株)Caddie神奈川県知事免許(1)第31310号 |
|---|
- 交通:
- ブルーライン/伊勢佐木長者町駅 徒歩3分
- 神奈川県横浜市中区長者町3丁目8-13 TK関内プラザビル304A
- TEL:
- 045-392-7458
- 所属団体:
- (公社)神奈川県宅地建物取引業協会会員(公社)首都圏不動産公正取引協議会加盟
取引態様:仲介 |
- 提携サイト等より掲載されている物件情報につきましては、不動産会社詳細情報にリンクされていないものがあります。
- 物件に関するお問合せは、物件詳細ページの「情報提供会社」に表示されている不動産会社へ直接お願いいたします。
- 間取図は、現況を優先させていただきます。
- 映像は物件の一部を撮影したものです。物件の契約にあたっての最終判断はご自身の判断に基づいて行ってください。
- 仲介手数料について

アットホームは物件情報の適正化に努めております。
内容に誤りがある場合にはこちらへご連絡ください。