大阪府茨木市真砂1丁目(沢良宜駅)の貸その他:物件詳細
交通 所在地 |
駅徒歩 |
賃料 管理費等 |
敷金/保証金 礼金 |
使用部分面積 坪数/坪単価 |
物件種目 築年月 |
|
大阪モノレール本線/沢良宜
大阪府茨木市真砂1丁目
|
19分
|
10.5万円
5,000円
|
2ヶ月 / なし
2ヶ月
|
33.00m²
9.98坪/1.0519万円
|
貸倉庫
2020年1月(築6年2ヶ月)
|
|
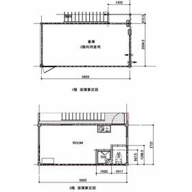
間取図
|
|
その他の画像
|
| 交通 | 大阪モノレール本線 沢良宜駅 徒歩19分 |
|---|
| その他の交通 | 阪急京都線 南茨木駅 徒歩21分 大阪モノレール本線 南茨木駅 徒歩22分 |
| 所在地 |
大阪府茨木市真砂1丁目
|
| 物件種目 |
貸倉庫 |
| 賃料 |
10.5万円 |
管理費等 |
5,000円 |
| 敷金 / 保証金 |
2ヶ月 / なし |
礼金 |
2ヶ月 |
| 敷引 |
- |
坪単価 |
1.0519万円 |
| 保証金償却 |
- |
権利金 |
- |
| 造作譲渡 |
- |
その他一時金 |
- |
| 保険等 |
要 テナント |
|
|
| 使用部分面積 |
33.00m² |
坪数 |
9.98坪 |
| 築年月 |
2020年1月(築6年2ヶ月)
|
階建 / 階 |
2階建 / 1階~2階部分 |
| 駐車場 |
有 無料(空き1台) |
バイク置き場 |
有 無料 |
| 駐輪場 |
有 無料 |
土地面積 |
- |
| 接道状況 |
-
|
用途地域 |
- |
| 間取り |
- |
建物構造 |
鉄骨造 |
| 建物名・部屋番号 |
|
| リフォーム履歴 |
- |
| リノベーション履歴 |
- |
| 特記事項 |
土曜日利用可、土日・祝日利用可、飲食店不可、デザイナーズ、角部屋 |
| 備考 |
賃貸保証等:加入要(日本セーフティー)
管理形態/管理員の勤務形態:-/-
真砂の1階倉庫2階事務所。
駐車場1台付き。
電動シャッター、シャワールーム、温水洗浄便座付トイレ、ミニキッチン、エアコン、照明器具等設備充実。
住居としての契約(法人登記NG,看板設置NG)
|
| エネルギー消費性能 |
- |
| 断熱性能 |
- |
| 目安光熱費 |
- |
| バス・トイレ |
バス・トイレ別、シャワールーム、シャワー、トイレ、多機能トイレ |
| キッチン |
- |
| 設備・サービス |
電動シャッター、給湯、エアコン、暖房、冷房 |
| その他 |
荷積みスペース、車寄せスペース |
| 契約期間 |
2年 |
条件等 |
- |
| 引渡可能時期 |
2026年3月中旬予定 |
現況 |
居住中 |
| 仲介手数料 |
1ヶ月 |
|
|
| 更新料 |
- |
物件番号 |
6985643879 |
| 情報公開日 |
2026年2月12日 |
次回更新予定日 |
2026年2月28日 |
| ケータイ用バーコード |
- スマートフォンでこの物件を見る
- スマートフォンからもこの物件をご覧になれます。
|
※「-」と表示されている項目については、情報提供会社にご確認ください。
| 周辺施設 |
業務用食品館のむのむ茨木玉櫛店 |
| 距離 |
485m |
| 周辺施設 |
セブンイレブン茨木新和町店 |
| 距離 |
202m |
| 周辺施設 |
ほっともっと茨木新和町店 |
| 距離 |
169m |
ここから簡単にお問い合わせをすることができます。
(SSLでの暗号化での送信を希望されるお客さまは
こちら
よりお問い合わせください)
お問い合わせを行う前に
「個人情報の取り扱いについて」を必ずお読みください。
「個人情報の取り扱いについて」に同意いただいた場合は「上記にご同意の上 確認画面へ進む」のボタンをクリックしてください。
個人情報の取り扱いについて
皆さまが送付された個人情報はアットホーム(株)のサーバを経由し、お問い合わせ先の不動産会社にメールまたはFAXにて転送されるためアットホーム(株)にも保管されます。アットホーム(株)で保管された個人情報の取り扱いについては、【こちら】をご覧ください。
また、本画面でご記入いただいた個人情報は、お問い合わせ先の不動産会社でも保管します。 お問い合わせ先の不動産会社が保管する個人情報の取り扱いについては、不動産会社に直接お問い合わせください。
国土交通大臣免許(8)第4288号 |
|---|
- 交通:
- 阪急宝塚線/豊中駅 徒歩4分
- 大阪府豊中市本町3丁目4-2 1F
- TEL:
- 06-4867-3558
- FAX:
- 06-4867-3977
- 所属団体:
- (一社)大阪府宅地建物取引業協会会員(公社)近畿地区不動産公正取引協議会加盟
取引態様:仲介  - 50101617
|
- スマートフォンで
この不動産会社を見る

|
- 提携サイト等より掲載されている物件情報につきましては、不動産会社詳細情報にリンクされていないものがあります。
- 物件に関するお問合せは、物件詳細ページの「情報提供会社」に表示されている不動産会社へ直接お願いいたします。
- 間取図は、現況を優先させていただきます。
- 映像は物件の一部を撮影したものです。物件の契約にあたっての最終判断はご自身の判断に基づいて行ってください。
- 仲介手数料について

アットホームは物件情報の適正化に努めております。
内容に誤りがある場合にはこちらへご連絡ください。