岡山県岡山市東区東平島(瀬戸駅)の貸その他:物件詳細
交通 所在地 |
駅徒歩 |
賃料 管理費等 |
敷金/保証金 礼金 |
使用部分面積 坪数/坪単価 |
物件種目 築年月 |
|
JR山陽本線/瀬戸
岡山県岡山市東区東平島
|
38分
|
2,263.8万円
-
|
なし / 3ヶ月
1ヶ月
|
19,436.52m²
5879.52坪/0.3851万円
|
貸工場
1981年6月(築44年8ヶ月)
|
|
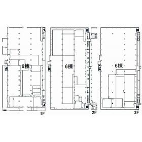
間取図
|
|
<
その他の画像
>
|
| 交通 | JR山陽本線 瀬戸駅 徒歩38分 |
|---|
| その他の交通 | JR山陽本線 上道駅 徒歩41分 【バス】 パナソニック前 停歩1分 |
| 所在地 |
岡山県岡山市東区東平島
|
| 物件種目 |
貸工場 |
| 賃料 |
2,263.8万円 |
管理費等 |
- |
| 敷金 / 保証金 |
なし / 3ヶ月 |
礼金 |
1ヶ月 |
| 敷引 |
- |
坪単価 |
0.3851万円 |
| 保証金償却 |
- |
権利金 |
- |
| 造作譲渡 |
- |
その他一時金 |
- |
| 保険等 |
要 火災 |
|
|
| 使用部分面積 |
19,436.52m² |
坪数 |
5879.52坪 |
| 築年月 |
1981年6月(築44年8ヶ月)
|
階建 / 階 |
3階建 |
| 駐車場 |
有 2,750円/月 空き多数あり |
バイク置き場 |
- |
| 駐輪場 |
- |
土地面積 |
- |
| 接道状況 |
東 12.0m
|
用途地域 |
準工業 |
| 間取り |
- |
建物構造 |
RC |
| アピールポイント |
フォークリフト構内出入可、1F低床式
物流倉庫としてのご使用もご相談応です! |
| 建物名・部屋番号 |
|
| リフォーム履歴 |
- |
| リノベーション履歴 |
- |
| 特記事項 |
- |
| 備考 |
管理形態/管理員の勤務形態:-/-
・1棟現況貸し(用途により改造応相談)
・1階+2階のご利用も応相談
・500~1000坪程ご利用も要相談(別棟)
・電気、水道代実費(貸主検針・請求)
・町内会費実費(賃貸面積によって請求)
・セキュリティ別途(回線工事借主負担)
・大電力のご利用については要相談
・賃料、定期契約期間等都度応相談
・西側中央EV:耐荷重1000キロ
・天井高1F3.3~3.5m、2F3.5m、3F3.5m
・耐荷重1F:1500キロ、2F、3F:500キロ
|
| エネルギー消費性能 |
- |
| 断熱性能 |
- |
| 目安光熱費 |
- |
| バス・トイレ |
男女別トイレ |
| キッチン |
- |
| 設備・サービス |
- |
| その他 |
- |
| 契約期間 |
10年 |
条件等 |
定期借家 |
| 引渡可能時期 |
相談 |
現況 |
空 |
| 仲介手数料 |
1.1ヶ月 |
|
|
| 更新料 |
- |
物件番号 |
6987046289 |
| 情報公開日 |
2025年7月17日 |
次回更新予定日 |
2026年1月23日 |
| ケータイ用バーコード |
- スマートフォンでこの物件を見る
- スマートフォンからもこの物件をご覧になれます。
|
※「-」と表示されている項目については、情報提供会社にご確認ください。
| 周辺施設 |
ワークマンプラス岡山平島店 |
| 距離 |
531m |
| 周辺施設 |
ディスカウントドラッグコスモス東平島店 |
| 距離 |
243m |
| 周辺施設 |
備前日生信用金庫平島支店 |
| 距離 |
624m |
ここから簡単にお問い合わせをすることができます。
(SSLでの暗号化での送信を希望されるお客さまは
こちら
よりお問い合わせください)
お問い合わせを行う前に
「個人情報の取り扱いについて」を必ずお読みください。
「個人情報の取り扱いについて」に同意いただいた場合は「上記にご同意の上 確認画面へ進む」のボタンをクリックしてください。
個人情報の取り扱いについて
皆さまが送付された個人情報はアットホーム(株)のサーバを経由し、お問い合わせ先の不動産会社にメールまたはFAXにて転送されるためアットホーム(株)にも保管されます。アットホーム(株)で保管された個人情報の取り扱いについては、【こちら】をご覧ください。
また、本画面でご記入いただいた個人情報は、お問い合わせ先の不動産会社でも保管します。 お問い合わせ先の不動産会社が保管する個人情報の取り扱いについては、不動産会社に直接お問い合わせください。
岡山県知事免許(4)第5026号 |
|---|
- 交通:
- 【バス】 今7丁目バス停 停歩10分
- 岡山県岡山市北区今7丁目6-16
- TEL:
- 086-805-0705
- FAX:
- 086-805-0702
- 所属団体:
- (公社)全日本不動産協会会員中国地区不動産公正取引協議会加盟
取引態様:仲介  - 50019342
|
- スマートフォンで
この不動産会社を見る

|
- 提携サイト等より掲載されている物件情報につきましては、不動産会社詳細情報にリンクされていないものがあります。
- 物件に関するお問合せは、物件詳細ページの「情報提供会社」に表示されている不動産会社へ直接お願いいたします。
- 間取図は、現況を優先させていただきます。
- 映像は物件の一部を撮影したものです。物件の契約にあたっての最終判断はご自身の判断に基づいて行ってください。
- 仲介手数料について

アットホームは物件情報の適正化に努めております。
内容に誤りがある場合にはこちらへご連絡ください。