大阪府大阪市西成区潮路1丁目(天下茶屋駅)の貸その他:物件詳細
交通 所在地 |
駅徒歩 |
賃料 管理費等 |
敷金/保証金 礼金 |
使用部分面積 坪数/坪単価 |
物件種目 築年月 |
南海本線/天下茶屋
大阪府大阪市西成区潮路1丁目
|
7分
|
49.28万円
なし
|
なし / 6ヶ月
なし
|
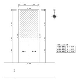
139.60m²
42.22坪/1.167万円
|
貸倉庫
2026年4月(新築)
|
間取図
配置図
|
外観
外観写真(現在、工事中の為同タイプの写真です。)
|
<
その他の画像
>
|
交通 | 南海本線 天下茶屋駅 徒歩7分 |
---|
その他の交通 | 地下鉄四つ橋線 岸里駅 徒歩5分 南海高野線 天下茶屋駅 徒歩7分 |
所在地 |
大阪府大阪市西成区潮路1丁目
|
物件種目 |
貸倉庫 |
賃料 |
49.28万円 |
管理費等 |
なし |
敷金 / 保証金 |
なし / 6ヶ月 |
礼金 |
なし |
敷引 |
- |
坪単価 |
1.167万円 |
保証金償却 |
解約時2ヶ月 |
権利金 |
- |
造作譲渡 |
- |
その他一時金 |
- |
保険等 |
- |
|
|
使用部分面積 |
139.60m² |
坪数 |
42.22坪 |
築年月 |
2026年4月(新築)
|
階建 / 階 |
2階建 |
駐車場 |
有 無料(空き4台) |
バイク置き場 |
- |
駐輪場 |
- |
土地面積 |
- |
接道状況 |
-
|
用途地域 |
- |
間取り |
- |
建物構造 |
鉄骨造 |
建物名・部屋番号 |
潮路1丁目で新築物件 1階倉庫20坪 2階事務所21坪 駐車場4台付 |
リフォーム履歴 |
- |
リノベーション履歴 |
- |
特記事項 |
土日・祝日利用可、大型トラック搬入可、飲食店不可、駐車場3台分以上、天井高2.5M以上 |
備考 |
賃貸保証等:加入要(初回加盟料は492,800円が必要です。)
管理形態/管理員の勤務形態:-/-
|
エネルギー消費性能 |
- |
断熱性能 |
- |
目安光熱費 |
- |
バス・トイレ |
トイレ2ヶ所 |
キッチン |
- |
設備・サービス |
電動シャッター、給湯 |
その他 |
- |
契約期間 |
3年 |
条件等 |
- |
引渡可能時期 |
2026年4月上旬予定 |
現況 |
未完成 |
仲介手数料 |
1ヶ月 |
|
|
更新料 |
なし |
物件番号 |
6988040340 |
情報公開日 |
2025年10月17日 |
次回更新予定日 |
2025年10月31日 |
ケータイ用バーコード |
- スマートフォンでこの物件を見る
- スマートフォンからもこの物件をご覧になれます。
|
※「-」と表示されている項目については、情報提供会社にご確認ください。
周辺施設 |
セブンイレブン大阪橘1丁目店 |
距離 |
197m |
周辺施設 |
アポロステーション岸ノ里SS |
距離 |
296m |
周辺施設 |
関西みらい銀行天下茶屋支店 |
距離 |
309m |
ここから簡単にお問い合わせをすることができます。
(SSLでの暗号化での送信を希望されるお客さまは
こちら
よりお問い合わせください)
お問い合わせを行う前に
「個人情報の取り扱いについて」を必ずお読みください。
「個人情報の取り扱いについて」に同意いただいた場合は「上記にご同意の上 確認画面へ進む」のボタンをクリックしてください。
個人情報の取り扱いについて
皆さまが送付された個人情報はアットホーム(株)のサーバを経由し、お問い合わせ先の不動産会社にメールまたはFAXにて転送されるためアットホーム(株)にも保管されます。アットホーム(株)で保管された個人情報の取り扱いについては、【こちら】をご覧ください。
また、本画面でご記入いただいた個人情報は、お問い合わせ先の不動産会社でも保管します。 お問い合わせ先の不動産会社が保管する個人情報の取り扱いについては、不動産会社に直接お問い合わせください。
大阪府知事免許(3)第57816号 |
---|
- 交通:
- 地下鉄御堂筋線/なかもず駅 徒歩10分
- 大阪府堺市北区長曽根町3000-22
- TEL:
- 072-242-8928
- FAX:
- 072-242-8927
- 所属団体:
- (公社)全日本不動産協会会員(公社)近畿地区不動産公正取引協議会加盟
取引態様:仲介  - 50026777
|
- スマートフォンで
この不動産会社を見る

|
- 提携サイト等より掲載されている物件情報につきましては、不動産会社詳細情報にリンクされていないものがあります。
- 物件に関するお問合せは、物件詳細ページの「情報提供会社」に表示されている不動産会社へ直接お願いいたします。
- 間取図は、現況を優先させていただきます。
- 映像は物件の一部を撮影したものです。物件の契約にあたっての最終判断はご自身の判断に基づいて行ってください。
- 仲介手数料について

アットホームは物件情報の適正化に努めております。
内容に誤りがある場合にはこちらへご連絡ください。