埼玉県志木市下宗岡2丁目(北朝霞駅)の貸その他:物件詳細
交通 所在地 |
駅徒歩 |
賃料 管理費等 |
敷金/保証金 礼金 |
使用部分面積 坪数/坪単価 |
物件種目 築年月 |
|
JR武蔵野線/北朝霞
埼玉県志木市下宗岡2丁目
|
29分
|
33万円
2,750円
|
3ヶ月 / なし
なし
|
257.11m²
77.77坪/0.4243万円
|
貸倉庫
1993年7月(築32年7ヶ月)
|
|
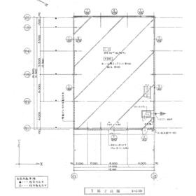
間取図
★1階平面図★天井が高く平屋倉庫のように使えます★
|
外観
★天井が高く平屋倉庫のように使えます★
|
その他の画像
|
| 交通 | JR武蔵野線 北朝霞駅 徒歩29分 |
| 所在地 |
埼玉県志木市下宗岡2丁目
|
| 物件種目 |
貸倉庫 |
| 賃料 |
33万円 |
管理費等 |
2,750円 |
| 敷金 / 保証金 |
3ヶ月 / なし |
礼金 |
なし |
| 敷引 |
- |
坪単価 |
0.4243万円 |
| 保証金償却 |
- |
権利金 |
- |
| 造作譲渡 |
- |
その他一時金 |
- |
| 保険等 |
- |
|
|
| 使用部分面積 |
257.11m² |
坪数 |
77.77坪 |
| 築年月 |
1993年7月(築32年7ヶ月)
|
階建 / 階 |
2階建 / 1階~2階部分 |
| 駐車場 |
有 無料 |
バイク置き場 |
有 無料 |
| 駐輪場 |
有 無料 |
土地面積 |
- |
| 接道状況 |
-
|
用途地域 |
1種住居 |
| 間取り |
- |
建物構造 |
鉄骨造 |
| アピールポイント |
平屋倉庫のように使える事務所付き貸倉庫です。
駐車場、トイレ付で使い勝手良好ですね。
礼金、更新料なしも嬉しいポイントです。
★見学希望お気軽にご相談ください★
(電話、ライン、メール問い合わせをご用意しております)
空き確認や見学希望、各種お問合せ、物件探しの依頼は電話でも承っております。
お電話の場合は03-6820-6462または046-212-2988(担当直通)までお気軽にご連絡ください。
当社は事業用不動産専門店として、関東全域と静岡県の物件を取り扱っております。
物件のお探しもご相談ください。
ご条件をお伺いして、物件情報をご提供させていただきます。
丁寧に一生懸命対応させていただきます。
是非、なんでもお気軽にご相談ください。 |
| 建物名・部屋番号 |
|
| リフォーム履歴 |
- |
| リノベーション履歴 |
- |
| 特記事項 |
- |
| 備考 |
管理形態/管理員の勤務形態:-/-
・現況優先
・更新料なし
・礼金なし
・保証会社:原則要加入
・業種:要相談
|
| エネルギー消費性能 |
- |
| 断熱性能 |
- |
| 目安光熱費 |
- |
| バス・トイレ |
トイレ |
| キッチン |
- |
| 設備・サービス |
- |
| その他 |
- |
| 契約期間 |
3年 |
条件等 |
- |
| 引渡可能時期 |
2026年2月上旬予定 |
現況 |
居住中 |
| 仲介手数料 |
1ヶ月 |
|
|
| 更新料 |
なし |
物件番号 |
6989151402 |
| 情報公開日 |
2026年1月20日 |
次回更新予定日 |
2026年2月3日 |
| ケータイ用バーコード |
- スマートフォンでこの物件を見る
- スマートフォンからもこの物件をご覧になれます。
|
※「-」と表示されている項目については、情報提供会社にご確認ください。
ここから簡単にお問い合わせをすることができます。
(SSLでの暗号化での送信を希望されるお客さまは
こちら
よりお問い合わせください)
お問い合わせを行う前に
「個人情報の取り扱いについて」を必ずお読みください。
「個人情報の取り扱いについて」に同意いただいた場合は「上記にご同意の上 確認画面へ進む」のボタンをクリックしてください。
個人情報の取り扱いについて
皆さまが送付された個人情報はアットホーム(株)のサーバを経由し、お問い合わせ先の不動産会社にメールまたはFAXにて転送されるためアットホーム(株)にも保管されます。アットホーム(株)で保管された個人情報の取り扱いについては、【こちら】をご覧ください。
また、本画面でご記入いただいた個人情報は、お問い合わせ先の不動産会社でも保管します。 お問い合わせ先の不動産会社が保管する個人情報の取り扱いについては、不動産会社に直接お問い合わせください。
東京都知事免許(2)第102028号 |
|---|
- 交通:
- 東京メトロ日比谷線/人形町駅 徒歩5分
- 東京都中央区日本橋人形町3丁目3-5
- TEL:
- 03-6820-6462
- 所属団体:
- (公社)全日本不動産協会会員(公社)首都圏不動産公正取引協議会加盟
取引態様:仲介  - 00281148
|
- スマートフォンで
この不動産会社を見る

|
- 提携サイト等より掲載されている物件情報につきましては、不動産会社詳細情報にリンクされていないものがあります。
- 物件に関するお問合せは、物件詳細ページの「情報提供会社」に表示されている不動産会社へ直接お願いいたします。
- 間取図は、現況を優先させていただきます。
- 映像は物件の一部を撮影したものです。物件の契約にあたっての最終判断はご自身の判断に基づいて行ってください。
- 仲介手数料について

アットホームは物件情報の適正化に努めております。
内容に誤りがある場合にはこちらへご連絡ください。