神奈川県横浜市都筑区佐江戸町(鴨居駅)の貸その他:物件詳細
交通 所在地 |
駅徒歩 |
賃料 管理費等 |
敷金/保証金 礼金 |
使用部分面積 坪数/坪単価 |
物件種目 築年月 |
|
JR横浜線/鴨居
神奈川県横浜市都筑区佐江戸町
|
15分
|
64.9万円
-
|
なし / 3ヶ月
1ヶ月
|
268.27m²
81.15坪/0.7998万円
|
貸倉庫
1992年12月(築33年5ヶ月)
|
|
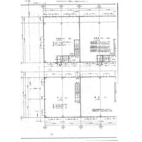
間取図
1階倉庫
|
間取図
2階事務所
|
その他の画像
|
| 交通 | JR横浜線 鴨居駅 徒歩15分 |
|---|
| その他の交通 | グリーンライン 中山駅 徒歩24分 グリーンライン 川和町駅 徒歩29分 |
| 所在地 |
神奈川県横浜市都筑区佐江戸町
|
| 物件種目 |
貸倉庫 |
| 賃料 |
64.9万円 |
管理費等 |
- |
| 敷金 / 保証金 |
なし / 3ヶ月 |
礼金 |
1ヶ月 |
| 敷引 |
- |
坪単価 |
0.7998万円 |
| 保証金償却 |
解約時1ヶ月 |
権利金 |
- |
| 造作譲渡 |
- |
その他一時金 |
- |
| 保険等 |
- |
|
|
| 使用部分面積 |
268.27m² |
坪数 |
81.15坪 |
| 築年月 |
1992年12月(築33年5ヶ月)
|
階建 / 階 |
2階建 |
| 駐車場 |
- |
バイク置き場 |
- |
| 駐輪場 |
- |
土地面積 |
- |
| 接道状況 |
東 8.0m
|
用途地域 |
工業地域 |
| 間取り |
- |
建物構造 |
鉄骨造 |
| アピールポイント |
1階(約38坪)と2階(約43坪)のバランスが良く、単なる保管庫ではなく「現場事務と作業場」を併設したい企業様に最適です 。
第三京浜道路「港北IC」から約4.2kmと、都心部や横浜市内へのアクセスが良好な立地です 。
前面には約4台分の駐車スペースも確保しており、車両移動の多いビジネスにも最適です。 |
| 建物名・部屋番号 |
|
| リフォーム履歴 |
- |
| リノベーション履歴 |
- |
| 特記事項 |
- |
| 備考 |
賃貸保証等:加入要(当社指定賃貸保証会社加入義務有(賃料1ヶ月分))
管理形態/管理員の勤務形態:-/-
管理費:相談
|
| エネルギー消費性能 |
- |
| 断熱性能 |
- |
| 目安光熱費 |
- |
| バス・トイレ |
トイレ |
| キッチン |
- |
| 設備・サービス |
- |
| その他 |
- |
| 契約期間 |
3年 |
条件等 |
定期借家 |
| 引渡可能時期 |
2026年8月上旬予定 |
現況 |
使用中 |
| 仲介手数料 |
1ヶ月 |
|
|
| 更新料 |
- |
物件番号 |
6990169215 |
| 情報公開日 |
2026年4月6日 |
次回更新予定日 |
2026年4月21日 |
| ケータイ用バーコード |
- スマートフォンでこの物件を見る
- スマートフォンからもこの物件をご覧になれます。
|
※「-」と表示されている項目については、情報提供会社にご確認ください。
| 周辺施設 |
まいばすけっと横浜白山2丁目店 |
| 距離 |
1899m |
| 周辺施設 |
ファミリーマート白山二丁目店 |
| 距離 |
1621m |
| 周辺施設 |
モスバーガー横浜佐江戸店 |
| 距離 |
369m |
ここから簡単にお問い合わせをすることができます。
(SSLでの暗号化での送信を希望されるお客さまは
こちら
よりお問い合わせください)
お問い合わせを行う前に
「個人情報の取り扱いについて」を必ずお読みください。
「個人情報の取り扱いについて」に同意いただいた場合は「上記にご同意の上 確認画面へ進む」のボタンをクリックしてください。
個人情報の取り扱いについて
皆さまが送付された個人情報はアットホーム(株)のサーバを経由し、お問い合わせ先の不動産会社にメールまたはFAXにて転送されるためアットホーム(株)にも保管されます。アットホーム(株)で保管された個人情報の取り扱いについては、【こちら】をご覧ください。
また、本画面でご記入いただいた個人情報は、お問い合わせ先の不動産会社でも保管します。 お問い合わせ先の不動産会社が保管する個人情報の取り扱いについては、不動産会社に直接お問い合わせください。
神奈川県知事免許(4)第26948号 |
|---|
- 交通:
- JR横浜線/新横浜駅 徒歩7分
- 神奈川県横浜市港北区新横浜3丁目19-11 加瀬ビル88 5階
- TEL:
- 045-534-8232
- FAX:
- 045-472-1125
- 所属団体:
- (公社)神奈川県宅地建物取引業協会会員(公社)首都圏不動産公正取引協議会加盟
取引態様:仲介  - 00100422
|
- スマートフォンで
この不動産会社を見る

|
- 提携サイト等より掲載されている物件情報につきましては、不動産会社詳細情報にリンクされていないものがあります。
- 物件に関するお問合せは、物件詳細ページの「情報提供会社」に表示されている不動産会社へ直接お願いいたします。
- 間取図は、現況を優先させていただきます。
- 映像は物件の一部を撮影したものです。物件の契約にあたっての最終判断はご自身の判断に基づいて行ってください。
- 仲介手数料について

アットホームは物件情報の適正化に努めております。
内容に誤りがある場合にはこちらへご連絡ください。