奈良県北葛城郡上牧町大字中筋出作(志都美駅)の貸その他:物件詳細
交通 所在地 |
駅徒歩 |
賃料 管理費等 |
敷金/保証金 礼金 |
使用部分面積 坪数/坪単価 |
物件種目 築年月 |
|
JR和歌山線/志都美
奈良県北葛城郡上牧町大字中筋出作
|
14分
|
17.82万円
5,500円
|
なし / なし
2ヶ月
|
86.94m²
26.29坪/0.6776万円
|
貸倉庫
2026年7月(新築)
|
|
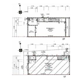
間取図
|
|
その他の画像
|
| 交通 | JR和歌山線 志都美駅 徒歩14分 |
|---|
| その他の交通 | JR和歌山線 香芝駅 徒歩20分 近鉄大阪線 近鉄下田駅 徒歩26分 |
| 所在地 |
奈良県北葛城郡上牧町大字中筋出作
|
| 物件種目 |
貸倉庫 |
| 賃料 |
17.82万円 |
管理費等 |
5,500円 |
| 敷金 / 保証金 |
なし / なし |
礼金 |
2ヶ月 |
| 敷引 |
- |
坪単価 |
0.6776万円 |
| 保証金償却 |
- |
権利金 |
- |
| 造作譲渡 |
- |
その他一時金 |
- |
| 保険等 |
要 |
|
|
| 使用部分面積 |
86.94m² |
坪数 |
26.29坪 |
| 築年月 |
2026年7月(新築)
|
階建 / 階 |
2階建 / 1階~2階部分 |
| 駐車場 |
有 無料(空き1台) 契約区画の前部分に普通車1台(軽なら2台) |
バイク置き場 |
- |
| 駐輪場 |
- |
土地面積 |
- |
| 接道状況 |
-
|
用途地域 |
1種住居 |
| 間取り |
- |
建物構造 |
木造 |
| アピールポイント |
多目的に使用可能な大型ガレージ&オフィス仕様の新築物件です。
大型ガレージ部分をテナントとしても使用可能です。 |
| 建物名・部屋番号 |
GARAGE&OFFICE SHOYO A |
| リフォーム履歴 |
- |
| リノベーション履歴 |
- |
| 特記事項 |
IT重説対応物件 |
| 備考 |
賃貸保証等:加入要(ジェイリース 初回保証料:賃料総額100%(最低保証料40,000円) 更新料:賃料総額10%/年)
管理形態/管理員の勤務形態:-/-
IT重説対応物件
※ゴミ処理代¥5,500/月※駐車場は契約区画前に普通車1台付き。(軽なら2台)
|
| エネルギー消費性能 |
- |
| 断熱性能 |
- |
| 目安光熱費 |
- |
| バス・トイレ |
- |
| キッチン |
- |
| 設備・サービス |
収納スペース、シャッター雨戸、エアコン、インターネット使用料無料 |
| その他 |
- |
| 契約期間 |
2年 |
条件等 |
- |
| 引渡可能時期 |
相談 |
現況 |
未完成 |
| 更新料 |
- |
物件番号 |
6990379448 |
| 情報公開日 |
2026年4月17日 |
次回更新予定日 |
2026年5月1日 |
| ケータイ用バーコード |
- スマートフォンでこの物件を見る
- スマートフォンからもこの物件をご覧になれます。
|
※「-」と表示されている項目については、情報提供会社にご確認ください。
ここから簡単にお問い合わせをすることができます。
(SSLでの暗号化での送信を希望されるお客さまは
こちら
よりお問い合わせください)
お問い合わせを行う前に
「個人情報の取り扱いについて」を必ずお読みください。
「個人情報の取り扱いについて」に同意いただいた場合は「上記にご同意の上 確認画面へ進む」のボタンをクリックしてください。
個人情報の取り扱いについて
皆さまが送付された個人情報はアットホーム(株)のサーバを経由し、お問い合わせ先の不動産会社にメールまたはFAXにて転送されるためアットホーム(株)にも保管されます。アットホーム(株)で保管された個人情報の取り扱いについては、【こちら】をご覧ください。
また、本画面でご記入いただいた個人情報は、お問い合わせ先の不動産会社でも保管します。 お問い合わせ先の不動産会社が保管する個人情報の取り扱いについては、不動産会社に直接お問い合わせください。
奈良県知事免許(3)第4121号 |
|---|
- 交通:
- 近鉄橿原線/大和八木駅 徒歩15分
- 奈良県橿原市葛本町705-2
- TEL:
- 0744-29-7001
- FAX:
- 0744-29-7002
- 所属団体:
- (公社)奈良県宅地建物取引業協会会員(公社)近畿地区不動産公正取引協議会加盟
取引態様:仲介  - 50025849
|
- スマートフォンで
この不動産会社を見る

|
- 提携サイト等より掲載されている物件情報につきましては、不動産会社詳細情報にリンクされていないものがあります。
- 物件に関するお問合せは、物件詳細ページの「情報提供会社」に表示されている不動産会社へ直接お願いいたします。
- 間取図は、現況を優先させていただきます。
- 映像は物件の一部を撮影したものです。物件の契約にあたっての最終判断はご自身の判断に基づいて行ってください。
- 仲介手数料について

アットホームは物件情報の適正化に努めております。
内容に誤りがある場合にはこちらへご連絡ください。